


Listing Description
Alfresco Living in Clevedon
27 / 43 Pureirei Drive, Clevedon, Manukau City, Auckland
Asking price $1,529,000
Details
| Attribute | Value |
|---|---|
| Property type | House |
| In the area | Clevedon Village, Farmers Market, Primary School |
| Property ID# | JJR260 |
| Agency reference | MK-18687 |
Description
G.J. Gardner Homes House and Land Package featuring a Custom design.
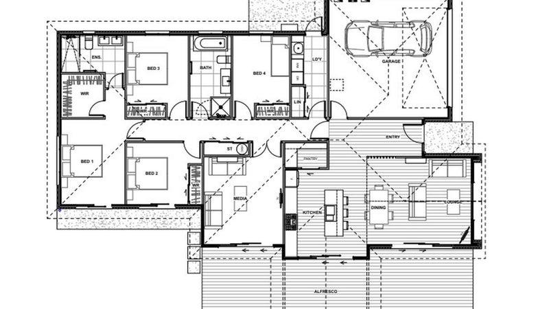
Lot 27 is an 870m² blank canvas in Conmara Estate, perfect for Alfresco country living in Clevedon. This exceptionally well priced family home offers timeless modern design and features a covered roof area on the northerly aspect positioned to capture all day sun - from sunrise to sunset. This well designed family home features:
- Covered Alfresco area - perfect for year round outdoor living.
- Four bedrooms - master with ensuite and modular wardrobe fit-out.
- Separate media room
- Open plan living - kitchen with walk in pantry
- Separate Laundry
- Double garage
Designed with style and function in mind, this home features a mix of exterior claddings, stone benchtop, and quality finishes throughout.
Build as is, modify, or start with a clean slate and custom design your own home - the choice is yours.
Need help with finance? Our team can connect you with trusted professionals to guide you through your options.
At GJ’s we’re here to help you every step of the way - making the building process stress-free, and enjoyable.
Your plan, our plans, or we can design from scratch. For more information visit our website http://www.gjgardner.co.nz MORE NEW ZEALANDERS TRUST G.J. GARDNER TO BUILD THEIR HOMES THAN ANY OTHER BUILDER.
If you’re thinking about building, make Home Prep the first step in your journey. It’s our essential step-by-step guide to the building process. Full of independent advice and handy information to help you have a great building experience. Get your free copy from gjgardner.co.nz today.
*Price is an indication only and includes land. Some conditions may apply. Image is artist’s impression only.
Copyright G.J. Gardner Homes




