


Listing Description
Begin Your Next Chapter in Popular Allenton
Lot 5, 4A Nicolson Street, Allenton, Ashburton, Canterbury
Details
| Attribute | Value |
|---|---|
| Property type | House |
| In the area | Local Shops, Eateries, School and the Hospital only minutes away. |
| Agency reference | M0594 |
Description
- Turn Key Package - 10% Deposit, Balance on Completion
- Two Car Garaging
- Ensuite
- 10 Year Registered Master Build Guarantee
- Walk In Pantry
- Samsung Appliances
- Open Plan Living
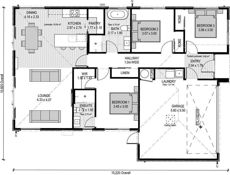
This home has a thoughtful floor plan that combines three double bedrooms, two bathrooms, a spacious open plan living area and a double garage. The well-appointed kitchen flows nicely with the North-facing living area to create an overall space that opens to the outdoor entertaining space. Finished with quality fixtures and fittings throughout and a landscaped section, this home offers great value and an easy lifestyle.
With tree lined streets and proximity to local amenities, Allenton is an ever popular but seldom available suburb of Ashburton. With local shops, eateries, schools, and the hospital only minutes away, yet still in walking distance to the town centre, this boutique subdivision will appeal to all who choose to make Allenton their home.
This Home is currently Under Construction and is Due for Completion in May 2026.
For more information, please contact our Sales Consultant or visit our website at http://www.mikegreerhomes.co.nz
Please note that all interior photos used are from a previous build, which have been used to provide an indicator of the Mike Greer Homes quality.
Open home times
Property Files

Discover more about this property.
Request the files from Vicky.
Local Schools
While we've done our best to correctly list schools in this location, school zone information may not be exact, so please double check with the school.











