


Listing Description
Comfortable, Convenient Living - Spring Grove
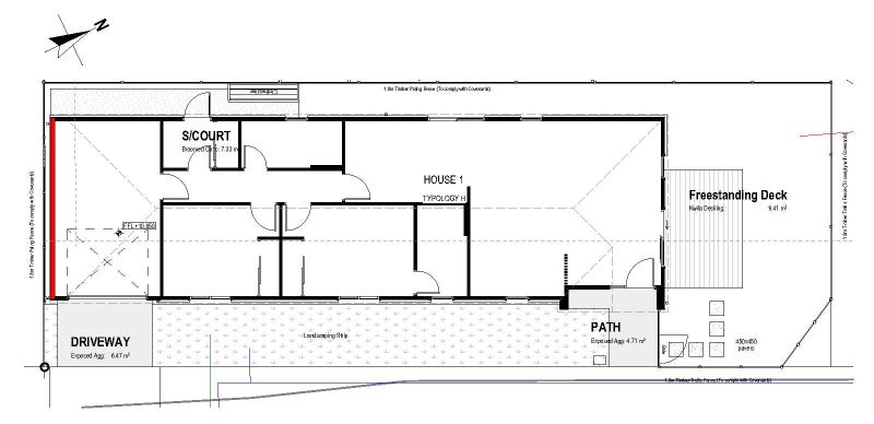
House 1 Don Peebles Way, Spring Grove, Belfast, Christchurch City, Canterbury
Details
| Attribute | Value |
|---|---|
| Property type | House |
| Agency reference | VC1410a |
Description
Now under construction, this home presents an exciting opportunity. Get in touch with our sales team today to find out more.
- Turnkey Package - 10% Deposit, Balance on Completion
- Digital Key Entry
- Ensuite
- Fully Landscaped
- Robinhood Appliances
- Stone Benchtop
- Separate Laundry
- Tiled Splashback
This stylish two bedroom home has a open plan design and a North facing easy care section that is fully landscaped and ideal for relaxing and entertaining. The bedrooms are well appointed, with a separate bathroom and ensuite. The home has been finished to a high standard with quality fixtures and fittings throughout. It offers an internal access single garage and has all driveways and fencing included in the sale price.
Spring Grove is a fast-growing subdivision just ten minutes North of Central Christchurch. You have the convenience of being in close proximity to a number of local shops and amenities, and the luxury of semi-rural amenities such as golf courses and recreational reserves. Spring Grove offers you the ideal location with a range of homes at an affordable price.
For more information, please visit our website at http://www.mikegreerhomes.co.nz
Please note: All interior photos are from previous builds, which has been used to provide an indicator of the Mike Greer Homes quality.
Open home times
Property Files
Discover more about this property.
Request the files from Gary.
Local Schools
While we've done our best to correctly list schools in this location, school zone information may not be exact, so please double check with the school.








