


Listing Description
Comfort, Space & Style
Lot165 Broadfield Grange, Rolleston, Selwyn, Canterbury
Details
| Attribute | Value |
|---|---|
| Property type | House |
Description
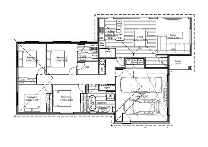
Lot 165 Broadfield Grange, Rolleston House: 171.53 sq.m / Section: 410 sq.m $732,500* *This price is for Progress Payments. Turnkey option is available.
Photos are of a similar home.
Key Features:
Brick with feature cladding
4 bedrooms
2 bathrooms
2 car garaging
Designer kitchen
Walk-in pantry
Bosch appliances
Tile splashback to the cooking area
Open plan kitchen/dining/living
Free standing bath
Daikin heat pump
Double glazed windows
Internal access garage
Rib-Raft foundation
Boundary fences
Driveway, patios and path included
Vehicle crossing
Master Build 10-Year Guarantee
Call today for further details: Ashish Sapra - 021 265 9394 – ashish@parklane.nz James Maher - 029 201 2453 – james.maher@parklane.nz
Homes by Parklane has been in the construction industry for over 25 years and prides itself on quality, competitive pricing, and client satisfaction.
Open home times
Property Files

Discover more about this property.
Request the files from Ashish.
Local Schools
While we've done our best to correctly list schools in this location, school zone information may not be exact, so please double check with the school.















