


Listing Description
Make Your Move to Beach Grove in 2026
Lot 473 Beach Grove - Croucher St, Kaiapoi, Waimakariri, Canterbury
Asking price $795,000
Details
| Attribute | Value |
|---|---|
| Property type | House |
| Agency reference | CT8353 |
Description
This home is ready to start construction in November 2025, get in touch with our sales team to find out more information.
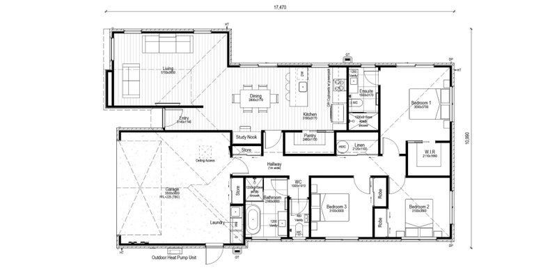
- Two Car Garaging
- Ensuite
- Godfrey Hirst Flooring
- Study Nook
- Walk-in Pantry
- Walk-in Wardrobe
Nestled on a beautifully landscaped section, this thoughtfully designed home combines smart layout with everyday comfort. Featuring three generous double bedrooms, a stylish family bathroom, and a private ensuite, it suits a variety of lifestyles. Each bedroom enjoys plenty of natural light and easy access to the living areas, making this home both practical and inviting.
Beach Grove is only 900 metres from the heart of Kaiapoi, and is also in close proximity to a range of outdoor pursuits such as fishing, cycling, white baiting, swimming, kayaking, rowing, walking and golfing. Sections and homes in Beach Grove represent exceptional value in such a convenient location with Christchurch city only a short commute away.
For more information, please visit our website at http://www.mikegreerhomes.co.nz
Please note: All interior photos are from previous builds, which has been used to provide an indicator of the Mike Greer Homes quality.
Open home times
Property Files
Discover more about this property.
Request the files from Hamish.








