


Listing Description
Choose Your Own Plan- Kotare Heights
415 Korimako Drive, Te Awamutu, Waipa, Waikato
Enquiries over $850,000
Details
| Attribute | Value |
|---|---|
| Property type | House |
| In the area | Schools, Medical Centres, Cafes, Restaurants, Retail Shops, Gyms, Supermarkets |
| Agency reference | 39 Kotare Heights |
Description
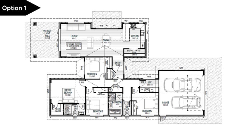
LOT 39 KOTARE HEIGHTS, TE AWAMUTU - 2 Options Available!
Kotare Heights is situated on the outskirts of Te Awamutu with its close proximity to Te Awamutu CBD and Pirongia Village this house and land package is not one to be missed!
Your new ZB home at Lot 39 Kotare Heights is your gateway to the good life. Enjoy low maintenance living with enough room for the whole family. (Build will commence after contract is signed)
- Option 1 ($919,000) | 4 bed/2 bath/2car | 174m2
- Option 2 ($855,000) | 3bed/2bath/1car | 149m2
Featuring:
- Designer Kitchen with Bosch appliances which flows through to the Dining and Living
- Internal access garage with separate laundry
- Quality fixtures & floor coverings throughout
- Double glazed windows
- Hydroseeded lawns
A brilliantly executed, architecturally designed and constructed home just for you. The build will start as soon as package is sold and you have made your selections! If concept plan isn’t quite what you are after, we have many other plans that will suit this section also.
Some conditions may apply. Images are artist’s impression only. Photos are from previous ZB Homes builds.
Open home times
Property Files

Discover more about this property.
Request the files from Kirsten.












