


Listing Description
Because Parking On Street Is Overrated
1-4/61 Brynley Street, Hornby, Christchurch City, Canterbury
Details
| Attribute | Value |
|---|---|
| Property type | House |
| Parking | 1 garage spaces |
| Agency reference | NTW32012 |
Description
A fantastic opportunity to secure a brand new home at 61 Brynley Street, built by a trusted builder and backed by a Master Build Guarantee for complete peace of mind.
If you have been watching the market you will know many new townhouses are being built without garages. These homes stand out by offering secure internal access garaging across all units, making them ideal for both homeowners and investors who value convenience and long term value.
Quality construction, smart layouts and modern finishes make these homes a standout choice.
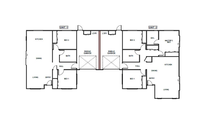
Unit Configuration
Unit 1 2 bedroom 1 bathroom with internal access garage Total floor area 94.96 sqm
Unit 2 3 bedroom 2 bathroom with internal access garage Total floor area 110.15 sqm
Unit 3 3 bedroom 2 bathroom with internal access garage Total floor area 110.15 sqm
Unit 4 2 bedroom 1 bathroom with internal access garage Total floor area 94.96 sqm
Key Features Master Build Guarantee for peace of mind Internal access garages in every unit Quality kitchen with engineered stone benchtops Bosch appliances Open plan living and dining Fully tiled bathrooms and quality fittings Heat pump for year round comfort Low maintenance landscaped sections Freehold titles
These homes offer the perfect blend of style, practicality and investment potential. Whether you are a first home buyer, investor or downsizer, having a garage with a new build adds security, storage and long term appeal that many new developments simply do not offer.
Strong rental demand and modern construction make this a smart addition to any property portfolio or an ideal place to call home.
Property documents can be downloaded from the following site: https://www.propertyfiles.co.nz/property/930360003
REA guides can be found at: https://www.rea.govt.nz/buyers-and-sellers/read-our-guides/
All information about the property has been provided to Ray White by third parties. Ray White has not verified the information and does not warrant its accuracy or completeness. Parties should make and rely on their own enquiries in relation to the property.
Open home times
Property Files

Discover more about this property.
Request the files from Harman.
Local Schools
While we've done our best to correctly list schools in this location, school zone information may not be exact, so please double check with the school.
Agent's details





