


Listing Description
Turn Key, Up to 10% Deposit, pay on Completion!
14 Cooksley Lane, Rangiora, Waimakariri, Canterbury
Details
| Attribute | Value |
|---|---|
| Property type | House |
| In the area | Schools, Shops, Parks, Cafes. |
| Agency reference | N3124 |
Description
Lot 252 Bellgrove
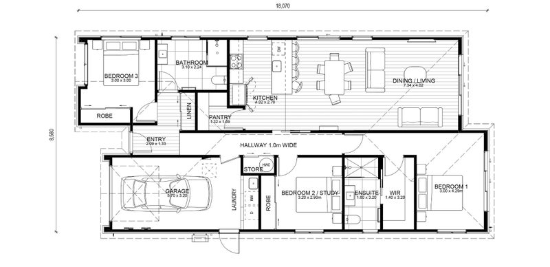
This stylish home combines a practical floor plan with attention to detail to maximise functionality and lifestyle. The three double bedrooms are complemented by a family bathroom and ensiute, as well as a spacious open plan kitchen, dining and living area. This well-appointed north facing living area opens out onto the landscaped section and outdoor entertaining area. An internal access single garage completes the package.
This home also features:
After Sales Care Program Driveways and Patios Included 10 Year Registered Master Build Guarantee Samsung Appliances Stone Benchtop Tiled Floors to Wet Areas Walk In Wardrobe Walk In Pantry
Bellgrove has been meticulously designed to offer living spaces and choices for all, promising a serene neighborhood that you'll love. Conveniently located just 30 minutes away from Christchurch city centre, Bellgrove offers an idyllic lifestyle within easy reach of all the amenities and attractions the city has to offer. The subdivision thoughtfully encompasses outdoor living spaces and neighboring recreational facilities, creating a well-rounded living experience.
Open home times
Property Files
Discover more about this property.
Request the files from Angela.
Local Schools
While we've done our best to correctly list schools in this location, school zone information may not be exact, so please double check with the school.




