


Listing Description
Listed: Tue, 16 Sep
Stunning Harbourside Home & Second Dwelling
265 Walker Road East, Katikati, Western Bay Of Plenty, Bay Of Plenty
Details
Other Features
| Attribute | Value |
|---|---|
| Property type | Dwelling |
| Capital value (CV) | $2,490,000 |
| Parking | 2 garage spaces, 1 carport spaces |
| Agency reference | KY6927 |
Description
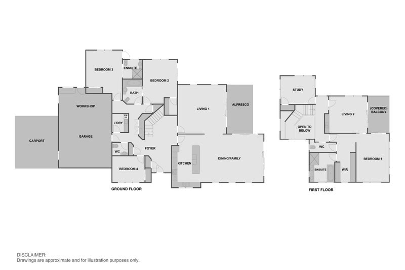
Multi-generational luxury and lifestyle living with this exceptional residence and two bedroom cottage set in an idyllic, sheltered, north-facing position overlooking the stunning Tauranga harbour.
- Spacious 360m2 floor plan, this home includes
- Large open plan living ,5 large bedrooms, 3 with ensuite bathrooms and decks
- A separate 2-bedroom cottage offering excellent income potential
- Double internal-access garage with ample work space
- 2 spacious family rooms on each level both with sea views
- High-stud boat or motorhome carport
- Inviting in ground pool.
- Easy care landscaped 2,883m2 section, adjacent to harbour access.
- This remarkable property offers a lifestyle like no other.
- Versatile, serene, private, with water views. Call John today to arrange a private viewing.
Open home times
No times scheduled
Local Schools
While we've done our best to correctly list schools in this location, school zone information may not be exact, so please double check with the school.






























