


Listing Description
Listed: Wed, 2 Oct
Live Exceptionally at 5 Fairweather Lane
5 Fairweather Lane, Tamahere, Waikato, Waikato
Price by negotiation
Details
Other Features
| Attribute | Value |
|---|---|
| Property type | Dwelling |
| Capital value (CV) | $3,150,000 |
| Parking | 4 garage spaces, 4 open spaces |
| Agency reference | HL8535 |
Description
Viewings by appointment only
- Located in a highly sought-after, premium Tamahere position
- With an expansive 427 square meters (more or less) of refined living space, plus 128sqm of additional living and shedding! This exceptional residence offers an unparalleled blend of elegance, comfort, and grandeur-perfect for sophisticated living and lavish entertaining.
- Ample space and privacy provided on the 5,235 sqm section located down a private lane way.
- High-Quality Construction Built in 2023 by Urban Homes, featuring Hardee's Oblique System cladding and San Remo brick construction with high ceilings throughout.
- The main home boasts 5 bedrooms, including 2 ensuites, plus a family bathroom, and additional guest toilet.
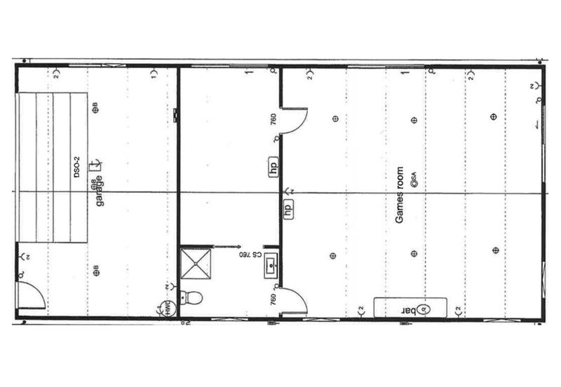
- Separate detached pool house / Rumpus room or games room featuring a bathroom, additional garaging, and workbenches.
- Designer Kitchen, featuring Miele and Bosch appliances plus a scullery with a separate sink, dishwasher including an instant boiling, chilled and sparkling water tap dispenser.
- The kitchen consists dual Miele ovens, induction cooktop, and two integrated dishwashers
- Three spacious lounges provide ample space for family living and entertainment.
- Luxurious bathrooms with underfloor heating for year-round comfort
- Imported oak hardwood flooring throughout the kitchen, family, and dining areas.
- Outside you will find a outdoor dining area with an in-built gas fireplace and media speakers for year-round entertaining.
- A Heated Magnesium Mineral Pool finished in Aitutaki Sands colour scheme perfect for relaxation and entertainment.
- Large laundry room with extensive storage solutions for optimal functionality.
- 48 solar panels, a Tesla Solar Power Wall System and a Tesla battery pack for energy provide efficiency and sustainability.
- Control4 automation system for lighting, alarm, electric gates, media, and security cameras including a central vacuum system.
- Generous 4+ car garaging with ample storage and workspace options
This home combines luxury, functionality, and sustainability for the discerning buyer looking for the finest in lifestyle living in the highly sought after Tamahere location. Do not miss out on this rare opportunity to own a masterpiece of modern design and comfort!
For further information and viewing times, contact: Adam Flegg 021 550 592 and Lyall Stokes 021 222 1658. The Harcourts Hillcrest Rural & Lifestyle Team. See us on Facebook Too.
Open home times
No times scheduled
















































