


Listing Description
A Fresh Start in Paerata Rise – 100% Fixed Price
8 Tirikatene Avenue, Paerata, Franklin, Auckland
Details
| Attribute | Value |
|---|---|
| Property type | House |
| In the area | Schools nearby, 5 mins to Pukekohe, future train station, parks, trails, playground, cafe |
| Broadband in the area |
Description
Lot 106, Stage 9, Paerata Rise
A modern home designed for comfort in Paerata Rise
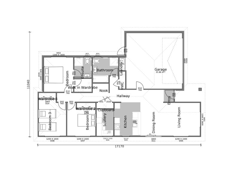
This well-planned home offers a smart layout that balances style, comfort and practicality. With three spacious bedrooms, including a private master suite with walk-in wardrobe and ensuite, the design makes the most of every square metre while still providing plenty of room for everyday life.
The home features a central open-plan kitchen, dining and lounge area that creates a natural gathering space for family and friends. The modern kitchen includes quality Fisher & Paykel appliances and a functional layout that makes daily life easy.
Life in Paerata Rise
Paerata Rise is a thoughtfully designed master-planned community located between Karaka and Pukekohe, around 40 minutes south of central Auckland. Once complete, the neighbourhood will include approximately 4,500 homes surrounded by green spaces, parks, neighbourhood reserves and a network of walking and cycling paths.
The area has been designed to create a strong sense of community, with excellent schooling options, playgrounds, local cafés and everyday amenities nearby. Future retail spaces and a planned transport hub with a railway station will further enhance convenience for residents. With Pukekohe town centre just minutes away, everything you need is close to home.
House & Land Package includes
- 152m² of internal living
- 460m² of north-facing land
- Double garage
- Three spacious bedrooms, including a master suite with walk-in wardrobe & ensuite
- Heat pump
- Modern kitchen with Fisher & Paykel appliances including large Scullery
- Study Nook
- Top soil, grass seed, some landscaping
- Fencing
- nfrastructure Growth Charge (IGC)
Our Signature Service Promise
We believe building your home should feel exciting, not stressful. When you build with Signature Homes, you can expect:
- Industry-leading building guarantees for complete peace of mind
- A dedicated team supporting you through every stage of the journey
- Transparent pricing with no hidden surprises
- Over 40 years of experience building homes across New Zealand
- Clear build timelines so you always know what to expect
Ready to take the next step?
Contact Sweta today on 027 880 5088 or swetawalters@signature.co.nz
All house and land packages are fully customisable and can be tailored to suit your lifestyle and preferences. Final home appearance may vary depending on design selections. Pricing may be subject to engineering and final design requirements.
Visit our Paerata Rise Showhome
32 Te Rata Boulevard, Paerata Rise Open daily 11am – 4pm
Open home times
Local Schools
While we've done our best to correctly list schools in this location, school zone information may not be exact, so please double check with the school.




















