


Listing Description
Cashed-Out Owner Means Opportunity for You!
2/3 Edmund Hillary Avenue, Papakura, Auckland
Asking price $719,000
Details
| Attribute | Value |
|---|---|
| Property type | House |
| Parking | 2 garage spaces |
| Agency reference | KKA32240 |
| Broadband in the area |
Description
Listen up. The owner of this property is an investor who's cashing out to move on to other plans. This isn't a casual sale - it's a motivated, time sensitive opportunity for you. The current tenants are moving out - meaning a quick mid-November settlement is ready to go... get in before Christmas and start the new year in your own home!
Why buy a cookie cutter new build with no space or parking when you can own a solid, single level brick and tile Kiwi classic with room to move, grow and add value over the years?
ACT NOW: The owner is liquidating this asset. This is your chance to stop renting and start building your own equity in a solid brick and tile home. YOURS FOR THE TAKING: Get off the rental treadmill and into a private, fully fenced home with plenty of off street parking. EFFORTLESS LIVING: This home features a heat pump ensuring you can live comfortably and focus on what matters. VALUE AHEAD: A basic renovation will add serious value! FLEXIBLE OPPORTUNITY: With the tenants moving out, investors have the freedom to refresh, retenant or add value straight away. Rental appraisal $650-700 pw.
Key Features:
- Solid single level brick & tile
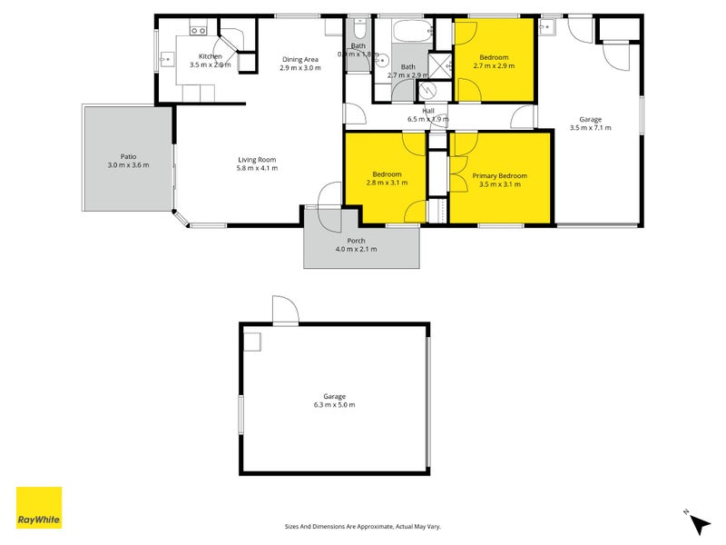
- Large floor area with an ideal family layout
- Three double bedrooms, one bathroom & separate toilet
- Internal laundry
- Large private outdoor space ideal for kids and entertaining
- Garden raised beds & fruit trees for those with a green thumb
- 2 car garaging - 1 internal access & a separate garage/workshop plus off street parking
With no plan B, the owners are committed to a sale. Act now, because once it's gone...it's gone for good! Contact Fiona or Rachael to arrange a viewing now or visit us at the advertised open homes.
PLEASE NOTE: Specified floor and land area sizes have been obtained from sources such as RPNZ or Auckland Council (LIM) documents. They have not been measured by the Salesperson or City South Investments 2019 Ltd. We recommend you seek your own independent legal advice if these sizes are material to your purchasing decision.
Open home times
Property Files

Discover more about this property.
Request the files from Fiona.
Agent's details















