


Listing Description
Prime Spot, Smart Choice, Ready For Your Touch
10B Te Arawa Place, Welcome Bay, Tauranga, Bay Of Plenty
Price by negotiation
Details
| Attribute | Value |
|---|---|
| Property type | House |
| Parking | 1 Car Garage |
| Agency reference | 920954 |
| Broadband in the area |
Description
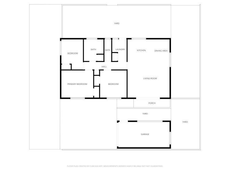
This inviting three-bedroom home in Welcome Bay offers a relaxed, easy-care lifestyle in a location that’s hard to beat. Perfectly suited for first-home buyers, families, or investors, it delivers space, convenience, and a layout designed for effortless everyday living.
The kitchen, dining, and lounge connect with ease, creating a bright and functional space for family life. A sliding door opens to a sunny deck – ideal for morning coffee or evening unwind time. Step outside to the pizza oven, perfect for entertaining friends on warm summer nights. The generous yard provides room for children to play and space for a caravan, boat, or extra vehicles.
Three well-proportioned bedrooms offer comfort and flexibility, while a practical bathroom and separate toilet make busy mornings a breeze. The low-maintenance grounds mean you can spend more time enjoying life and less on upkeep.
Set in a sought-after location near Waipuna Park, quality schools, and community facilities, this property combines lifestyle and convenience in one appealing package. Ready for you to make your mark, this is an excellent opportunity to secure a solid, welcoming home in a prime position. Our vendors are ready for their next step – contact us today to make it yours.
Open home times
Property Files

Discover more about this property.
Request the files from Chrystal.
Agent's details























