


Listing Description
Your Lowburn Lifestyle Awaits
115 Lowburn Valley Road, Cromwell, Central Otago, Otago
Enquiries over $1,850,000
Details
| Attribute | Value |
|---|---|
| Property type | House |
| Agency reference | QBS13893 |
| Broadband in the area |
Description
An attractive builders own home is offered to the market for the first time in desirable Lowburn. Offering a discreet street presence due to the beautifully established plantings, this contemporary Cedar and Corrugate clad home enjoys a sought-after setting flooded in year-round sunshine. Welcome to your new home!
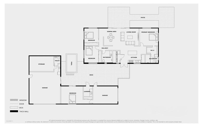
Cleverly proportioned for easy everyday living, the 267 sq m floor plan hosts an open-plan kitchen, dining and living area offering space, functionality and an abundance of natural light. The well-appointed kitchen with walk-in pantry, feature Belling oven and island bench is perfect for effortless socialising.
Indoor and outdoor lines are blurred; the large west-facing sliding doors ensure an easy transition to a large patio which further enhances your living and dining options. The private 2,996 sq m section has been extensively landscaped and is perfect for little ones, family gatherings and furry friends. The timber deck to the east provides a sheltered area for your morning coffee and direct access to the heated swimming pool for those hot summer days.
Accommodation consists of four double bedrooms and two bathrooms. The primary bedroom has a walk-in wardrobe and en-suite. There is also a separate laundry, a single and double garage as well as superb off-street parking plus a large carport that could accommodate the caravan, boat and all the toys.
With year-round sunshine, 140mm framing, great insulation, a mix of triple and double glazing, this home also benefits from central heating, heat pump and solar with battery.
This location is hard to beat, and lifestyle opportunities are endless with walking trails, summer water parks, and lake access for boating and water activities just moments away. All the while Wanaka and Queenstown remain easily accessible. This is a rare opportunity to secure an outstanding home in an iconic Central Otago location.
Open home times
Property Files

Discover more about this property.
Request the files from Justine.
Local Schools
While we've done our best to correctly list schools in this location, school zone information may not be exact, so please double check with the school.
Agent's details


























