


Listing Description
One Title, Two Incomes, Two Carparks! $$$
204 A&B/16 Mountain Ash Drive, Frankton, Queenstown-Lakes, Otago
Asking price $850,000
Details
| Attribute | Value |
|---|---|
| Property type | House |
| Capital value (CV) | $820,000 |
| Parking | 2 open spaces |
| Broadband in the area |
Description
This is a rare chance to secure a high-yield investment or a flexible home-plus-income property in the heart of Frankton.
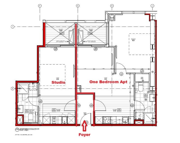
This spacious dual key apartment (approx. 85m² including balconies) is cleverly designed as two fully self-contained, fully furnished units with separate entrances:
Features:
- Shared foyer with private entrances to each unit
- Full kitchens with oven, cooktop, dishwasher & ample storage
- Laundry facilities in both bathrooms
- Private balconies off each unit
- Two car parks
- Sold fully furnished and move-in/rent-ready
- North-facing with all-day sun and panoramic views of Coronet Peak, Crown Range & Cecil Peak
The apartment is perfectly positioned just a 10-minute walk from Remarkables Park shopping centre and the new cinema, while Five Mile Shopping Centre with Kmart, Pak'nSave and a wide range of retail options is only a 10-minute drive away. The complex is surrounded by scenic walking and cycling tracks, and with a bus stop right outside, it offers excellent convenience for both tenants and commuters.
Why This Property?
- Two income streams from day one
- Live in one unit, rent the other - ideal for first-home buyers
- High rental demand in a prime location
- Affordable entry into the Queenstown market with proven returns
As a former building manager for the complex and senior property manager with extensive experience in Queenstown Body Corps, Esteban can offer investors in-depth knowledge and guidance. Our Queenstown team is well placed to answer any questions you may have about returns, demand, or rental options.
Contact Us Today: Esteban Sanguineti - Queenstown-based Broker Owner & Licensed Salesperson: 021 207 8959 Cory McVicar - Queenstown-based Licensed Salesperson: 021 455 345
Open home times
Property Files

Discover more about this property.
Request the files from Esteban.
Agent's details

Esteban Sanguineti






















