


Listing Description
Secure Your New Build Now!
92 Spur Ridge Rise, Hanley's Farm, Jacks Point, Queenstown-Lakes, Otago
To be sold by deadline sale (by 27 Nov)
Details
| Attribute | Value |
|---|---|
| Property type | House |
| Parking | 2 car garaging |
| Agency reference | 4483426 |
| Broadband in the area |
Description
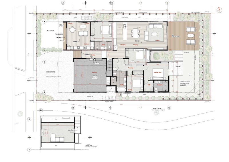
An exceptional opportunity to secure a brand-new home off the plans in the sought-after Hanley’s Farm community. Designed for modern living with flexibility in mind, this property combines architectural appeal with smart functionality.
The main home offers three generous bedrooms, including a master suite with walk-in wardrobe and ensuite. At its centre, the open-plan kitchen, dining, and living area with raked ceilings is filled with natural light and flows directly to a large deck for outdoor entertaining. A versatile loft space offers flexibility, whether used as a fourth bedroom, media room, or an additional lounge. and double garage complete the layout, with efficient heating and cooling ensuring year-round comfort.
A standout feature is the one-bedroom self-contained unit. With its own living space, kitchen facilities, bathroom, and private entrance, it provides an ideal solution for extended family, guests, or a rental income stream — adding both flexibility and value to the property.
Set on Spur Ridge Rise, the home has been carefully positioned to maximise sun, privacy, and views of the surrounding alpine landscape. Easy-care landscaping and contemporary finishes complete the package, with schools, reserves, and amenities all close by.
With the security of a new-build and the bonus of income potential, 92 Spur Ridge Rise is a versatile choice — whether as a family home or investment. Contact our team today for further information.
Open home times
Property Files

Discover more about this property.
Request the files from Jessica.
Agent's details







