


Listing Description
City Retreat
50 Abbotsford Street, Whitiora, Hamilton, Waikato
Asking price $639,000
Details
| Attribute | Value |
|---|---|
| Property type | House |
| Parking | 1 car garaging |
| Agency reference | RD22419 |
| Broadband in the area |
Description
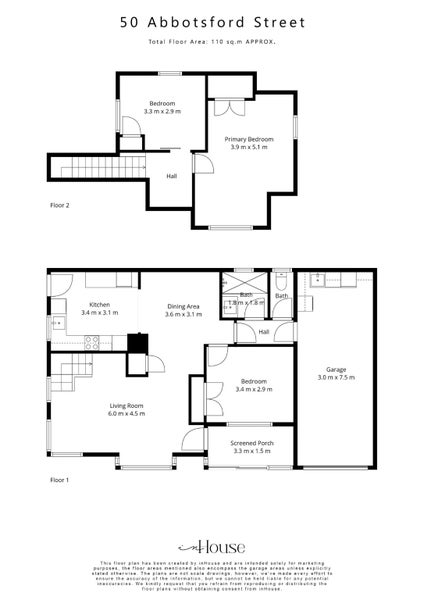
Perfectly positioned for lifestyle and convenience, this immaculate brick home is the ideal central starter, investment, lock-up-and-leave or could be used as an Air bnb. Beautifully presented inside and out, it offers spacious interiors, modern updates, and effortless low maintenance living in one of Hamilton’s most connected locations.
The refreshed kitchen forms the heart of the home, opening to a private courtyard surrounded by established gardens, an inviting spot for morning coffee, alfresco dining, or relaxing in the sun. Spacious lounge and dining area is complete with a heat pump and plantation shutters, while the adjoining conservatory adds a bright and welcoming touch upon entry.
Downstairs there is a double bedroom and tidy bathroom featuring a tiled shower and separate toilet. Upstairs, two additional bedrooms await, including a master with its own heat pump for comfort.
Single garage and fully fenced section. From here, it’s a short stroll to the FMG Stadium, river walks, or a quick drive to the CBD and key transport routes providing the ultimate in central convenience.
To download the property files copy and paste the link below into your browser: https://www.propertyfiles.co.nz/property/50abbotsford
Open home times
Property Files

Discover more about this property.
Request the files from Jamie.
Agent's details


















