


Listing Description
Brick home with elevated privacy
22 Reservoir Street, Putaruru, South Waikato, Waikato
Asking price $530,000
Details
| Attribute | Value |
|---|---|
| Property type | House |
| Capital value (CV) | $515,000 |
| Parking | 1 carport |
| Agency reference | PTU211873 |
| Broadband in the area |
Description
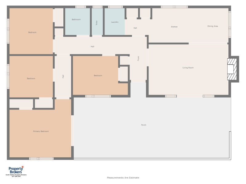
Our vendors are motivated to move on, creating an excellent opportunity for first home buyers or savvy investors to secure this solid brick property at 22 Reservoir Street. Sitting on an elevated section, the home offers a sense of space and seclusion while still being close to town conveniences. Step inside to find four bedrooms, a functional family bathroom, and a spacious living area that flows seamlessly through double doors to the outdoor patio. The master bedroom also enjoys direct access to this sunny spot, perfect for morning coffee or evening relaxation. Polished hardwood floors add warmth and character throughout, while the partial fencing provides peace of mind for children or pets. With the strength and timelessness of brick construction, this home is both low-maintenance and enduring. Whether you’re looking to step onto the property ladder or expand your rental portfolio, this property ticks the boxes for potential and practicality. Opportunities like this don’t stay on the market for long—get in touch today to arrange a viewing or request further information.
Open home times
Property Files

Discover more about this property.
Request the files from Scott.


















