


Listing Description
Renovated and Ready to go!
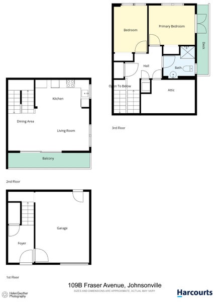
109b Fraser Avenue, Johnsonville, Wellington, Wellington
Details
| Attribute | Value |
|---|---|
| Property type | House |
| Capital value (CV) | $610,000 |
| Parking | 1 garage spaces |
| Agency reference | JO32876 |
| Broadband in the area |
Description
If you've been waiting for the perfect blend of comfort, convenience, and low-maintenance living - this recently renovated two bedroom townhouse is it.
Set up for all the afternoon sun and walking distance to Raroa train station, Raroa Intermediate and Onslow College.
Beautifully positioned low maintenance home offers effortless living with internal accessing garaging and set back up off the road providing peace and privacy. Whether you're stepping onto the property ladder, downsizing, or adding to your investment portfolio, this is an opportunity that simply makes sense.
Opportunities like this don't sit around for long.
LIM ordered, Builders Report on its way.
Get in touch today to arrange your viewing - we've got the strategy, are you ready to make your move?
Open home times
- to
Property Files

Discover more about this property.
Request the files from Stephanie.
Local Schools
While we've done our best to correctly list schools in this location, school zone information may not be exact, so please double check with the school.
Agent's details











