


Description
- Most of the Work is Done – Just Add the Finishing Touches!
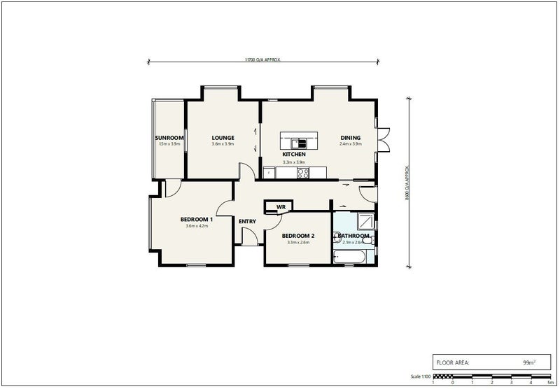
This charming 99m², 2-bedroom bungalow is packed with original character and ready for a new chapter. Recently updated with key renovations, this is an ideal option for someone wanting a quality relocatable home with minimal work left to do.
- Features:
- Classic bay windows and original leadlight glass
- Beautifully polished native timber floors
- Freshly painted interior and exterior
- Brand new roof
- New solar system installed
- Kitchen partially completed – cabinetry in place (sink, oven, and hob still to install)
- Electrical fittings not yet completed
- Bathroom unrenovated – ready for your personal design
- Relocation Info:
- Must be removed from site by March 2026
- Estimated relocation cost: $75,000 – $85,000 + GST (within 100km to level site with standard access) Subject to access, distance, and site-specific factors.
- Expert Help Available: I'm a project manager with extensive experience in relocatable homes and am selling this house on behalf of my client. I can help with:
- Site feedback before you commit
- Full project management (including relocation, consents, and final renovations)
- Advice tailored to your relocation site and needs
- Viewing: Due to the home being located on a farm, viewings are by appointment only.
- Contact: Stephen 027 212 6092 quantumactionltd@gmail.com
- Get in touch to ask questions, arrange a viewing, or discuss your site – this is a rare chance to secure a quality character home at a fraction of the cost of building new!
KEYWORDS: Bungalow, Transportable home, Transportable dwelling, Transportable building, Transportable house, Relocatable House, Relocatable Dwelling, Relocatable building, Removable House, Removable Dwelling, Removable home, Removable building, House for removal, Building for removal, Dwelling for removal, Home for removal, House haulage, Clear my site, Second hand home, Houses for removal, Homes for removal, Building for removal,
Details
Condition:
Shipping & pick-up options
Destination & description | Price | |
---|---|---|
Buyer must pick-up from Waitakere, Auckland | Free |
Payment Options
Cash, NZ Bank Deposit
Questions & Answers
No questions have been asked!
Bungalow for Removal – Character & Comfort, Nearly Renovated!
Closes: Fri 17th Oct, 8:30pm
8 days, 2 hours, 18 minutes
Q
QuantumAction ( 20 )100% positive feedback Seller located in Waitakere, Auckland
About the seller
QuantumAction
100% positive feedback( 20 in trade
Location
Member since
View seller's other listings