

Description
The whole package!
For sale is 2x 17m2 tiny homes, with full deck, retractable roof and screw piles. This is everything required to ‘plug and play’
They are currently located in the Waikato.
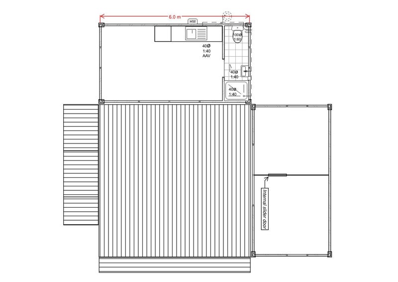
Modules measure ~6 x 3m Deck measures 6 x 6m and includes custom steps to both sides. Roof is made to fit deck (6 x 6m), and is motorized to retract, plus has full LED lighting system. Kitchen is ~2m in width and includes full height pantry and open shelving above benchtop. Gas califont included.
Details
Condition:
Shipping & pick-up options
Destination & description | Price | |
---|---|---|
Buyer must pick-up from Cambridge, Waikato | Free |
Payment Options
Cash, NZ Bank Deposit
Questions & Answers
No questions have been asked!
Tiny home package!
Closes: Fri 7th Nov, 10:24am
28 days, 21 hours, 49 minutes
F
fluffy65 ( 105 )100% positive feedback Seller located in Cambridge, Waikato
About the seller
fluffy65
100% positive feedback( 105 address verified
Location
Member since
View seller's other listings