


Description
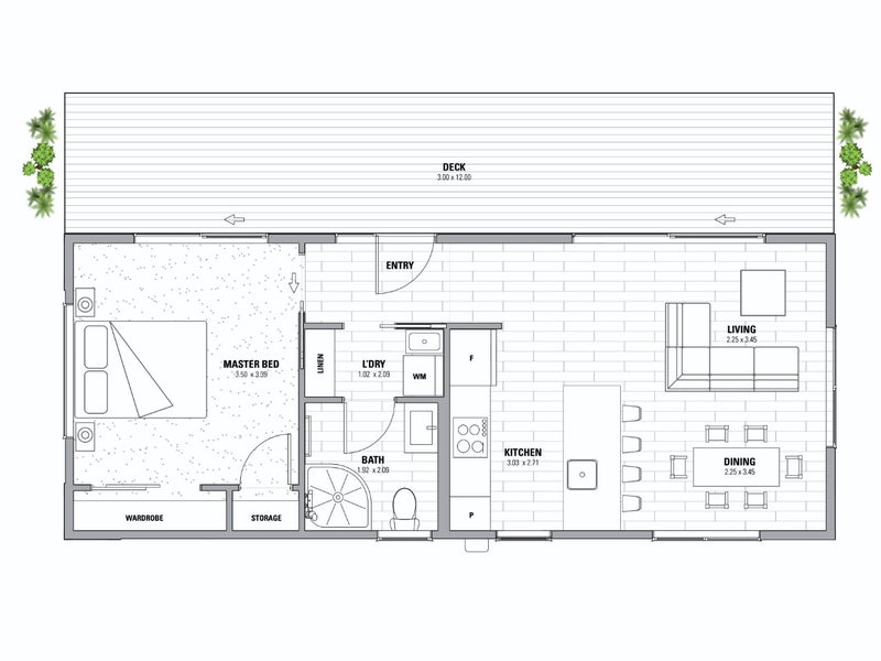
Brand New One Bedroom transportable home with a touch of class. Built by highly qualified tradesman, these transportable homes have to be seen to be believed. Each home is a testament to modern living, featuring spacious interiors, efficient layouts, and customizable options to suit your needs.
If comfortable living in quality surroundings is a priority for you, then these Transportable Homes are quite simply a must-see. This home is finished in Weathertex smooth 150, a low maintenance, Australian hardwood built to withstand even the toughest conditions.
Optional extras can include: Heat Pump Masport wood fire Solar package Site related works, including foundation install, decking, sheds and Pergolas.
All units are built by licensed building practitioners, consented and have been constructed to: Earthquake Zone 3, Climate Zone 4, Very High wind zone and exposure zone D
Council Code of Compliance, Plumbing, Gas and Electrical certification is provided with every home.
One, two and three bedroom options are available.
Fixed price quotes provided.
Contact Modern Settler Homes for more information.
Viewings available on appointment
http://www.modernsettlerhomes.co.nz Jack Kelly 0277512687 Jack.kelly@modernsettlerhomes.co.nz
Details
Shipping & pick-up options
Destination & description | Price | |
---|---|---|
To be arranged | N/A |
Seller does not allow pick-ups
Payment Options
NZ Bank Deposit