


Listing Description
Listed: Fri, 17 Jan
Freehold Terrace Living by the Reserve!
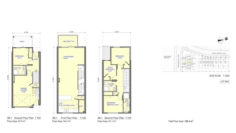
38 Pigeonwood Place, Flat Bush, Manukau City, Auckland
Price by negotiation
Details
Other Features
| Attribute | Value |
|---|---|
| Property type | Townhouse |
| Parking | 1 Car Garage, 1 Car Off Street Parking |
| Agency reference | 905302 |
Description
Nestled by a tranquil reserve, this freehold new build is ready for you to move right in.
The 152 m2 floor area features a versatile layout that caters to families, investors or even flatmates. Offering four bedrooms - 3 double and a smaller one / study, open plan living, three bathrooms and secure parking for two cars, this property is waiting for you to call it home.
Key Features -
- LOCATION: Neighbouring a lush reserve, yet just 2 km away from Ormiston Town's vibrant cafes, restaurants and shops, this lock & leave lifestyle provides both convenience and relaxation.
- CONFIGURATION: Picture yourself unwinding on your private balcony or preparing a gourmet meal in the sleek kitchen equipped with Bosch appliances and stunning stone bench tops.
- EDUCATION OPPORTUNITIES: Handy to premier schools like Te Uho o te Nikau Primary, Ormiston Junior College and Ormiston Senior College, providing top-tier education options for your family.
- CONVENIENCE: Say goodbye to traffic woes with a bus stop conveniently located close by.
- FREEHOLD TITLE: Enjoy the freedom of a freehold title without the burden of Body Corp fees.
Top-of-the-line residence + luxury living with minimal upkeep = modern living at its finest.
Ready for a private viewing? For exceptional service, call Betty, or visit our show home at 32 Pigeonwood Place.
*Photos of a similar property
See interactive features for this property on barfoot.co.nz. Click the "View their website" link at the bottom of this page.
Open home times
Sat, 1 Nov
Sat, 1 Nov
Sat, 1 Nov
Sun, 2 Nov
Sun, 2 Nov
Sun, 2 Nov
Request a viewing













