


Listing Description
Fletcher Quality in Ormiston $769,000
11 Huru Road, Flat Bush, Manukau City, Auckland
Asking price $769,000
Details
| Attribute | Value |
|---|---|
| Property type | Townhouse |
| Parking | 1 open spaces |
Description
*Visit our Showhome at Ormiston Fields Showhome at 3 Koura Road, Flat Bush. Open 7 days a week, from 10:00 AM to 4:00 PM, Wednesday through Monday, and from 12:00 PM to 4:00 PM on Tuesday. Closed public holidays.
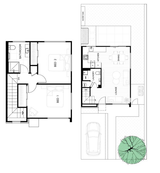
Step into a home where modern design meets everyday ease-perfectly tailored for first-home buyers or downsizers who crave comfort without compromise. This beautifully presented, 2-bedroom corner duplex offers more than just a place to live-it delivers a lifestyle, with low maintenance, contemporary finishes, seamless indoor-outdoor flow, and a location that puts everything you need right at your fingertips.
From the moment you enter, you'll be drawn in by the natural light that fills the open-plan living space. Designed with both function and flair in mind, the layout invites relaxed mornings, cozy evenings, and effortless entertaining.
The private, fully fenced yard is an ideal spot to unwind or host friends and family on warm summer afternoons. Upstairs, two generous double bedrooms provide peaceful retreats, complemented by a sleek, modern bathroom and thoughtful storage throughout. Whether you're looking to start your property journey or secure a low-maintenance investment in a fast-growing location-this home is a must-see.
Situated in a prime location, this home is within easy reach of Botany Junction, Ormiston, and Botany Shopping Centres, offering a wide choice of dining, shopping, and entertainment options. It's also just meters away from Best Start Daycare and zoned for Te Uho O Te Nikau Primary School, Ormiston Junior College, and Ormiston Senior College.
Get in touch with our New Home Consultant for more information.
Home features:
*2 bedroom, 1.5 bathroom (separate WC downstairs) *European design kitchen with open plan living *Quality kitchen appliances *Air conditioning heat pump *Double glazing *Car pad for parking *Rain water retention tank for garden use *Fully landscaped *Security alarm system *10 Year Master Build Guarantee
Photos are of a similar floor plan layout.
Open home times
Property Files

Discover more about this property.
Request the files from Daniel.












