


Listing Description
Innovative Elegance meets Unmatched Location!
30 Sunnyside Road, Coatesville, Rodney, Auckland
Price by negotiation
Details
| Attribute | Value |
|---|---|
| Property type | Bare land |
| Agency reference | PRE12023 |
Description
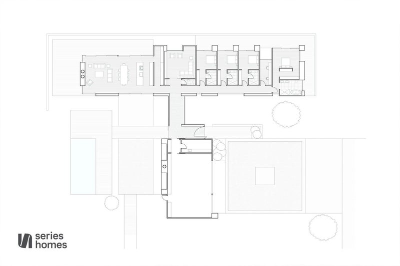
Step into a world of luxurious living with this exceptional design from N Series Homes. Positioned on approximately 1.8 hectares, this extremely private parcel of land is complemented by an impressive tree lined drive that leads to a sunny north facing site offering stunning panoramic views over the Coatesville Scenic Reserve, framed by mature plantings that guarantee a tranquil backdrop for your dream lifestyle build.
Yes, you can secure the section and plan your dream home or choose to maximise this contemporary design to adapt to your lifestyle, with configurable spaces and bespoke features that can be tailored to your exact specifications. Whether you’re envisioning a serene retreat or a dynamic family hub, this high-end home can be tailored specifically for you.
The site is located within easy walking distance to Coatesville’s beloved cafes, shop, Pony Club and traditional country school with Albany approximately 10 minutes away.
A once-in-a-lifetime opportunity to secure an exquisite section in one of Auckland’s most desirable lifestyle locations. Contact Nicky White or James Bailey today.
DISCLAIMER 3D Renders are for conceptual purposes only.
Open home times
Property Files

Discover more about this property.
Request the files from James.
Agent's details




















