


Description
Available Now
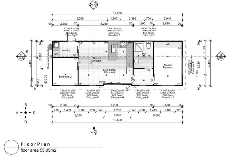
Premium living made simple. This 55sqm, 2-bedroom premium cabin delivers full-sized comfort with a modern, efficient layout. Clad in durable Weathertex with a 25-year warranty, it’s built to last — inside and out.
The full kitchen and bathroom provide all the essentials for everyday living, while built-in wardrobes and storage keep things tidy and functional. Gas califont hot water ensures instant comfort and efficiency.
Whether you’re setting up a new home, adding a rental, or creating a family-friendly getaway, this cabin blends practicality with premium design.
Features:
- 12.6 x 4.4m (approx. 55sqm) layout
- Two bedrooms with built-in wardrobes and storage
- Full kitchen and bathroom
- Gas califont hot water
- Full kitchen with AGB stone benchtop
- Full Code Compliance Certificate (CCC)
- Weathertex cladding with 25-year warranty
- Built for long-term comfort and value
Finance available
See it today. Own it tomorrow.
Ideal for: Family living, secondary dwelling, rental property, Airbnb, or modern lifestyle accommodation.
Details
Condition:
Shipping & pick-up options
| Destination & description | Price | |
|---|---|---|
| To be arranged | N/A | |
| Pick-up available from Papakura, Auckland | Free | |
Payment Options
Cash
Questions & Answers
No questions have been asked!
unit2go | 2 Bedroom Premium Cabin - 12.6 x 4.4m
Closes: Sun 28th Dec, 1:25pm
29 days, 21 hours, 42 minutes
unit2go_nz profile image
unit2go_nz ( 0 )Seller located in Papakura, Auckland
About the store
unit2go_nz
in trade







