


Description
High-Quality Timber Homes – Built for Durability & Comfort
We design and build premium timber homes engineered for New Zealand conditions, including coastal, corrosion, and extra high-wind environments.
Features
- Timber construction built for strength and longevity
- Designed for Extra High Wind Zone conditions
- Suitable for corrosion / sea-spray environments
- High-performance insulation: R3.6 ceiling, R2.8 walls, R3.1 Expol Black underfloor
- Designed for Climate Zones 1–4 (upgrades available for Zones 5–6)
- Double-glazed joinery
- Coastal-grade Colorsteel cladding and roofing
- Truewood & cedar feature porch with Kwila decking
- Modern kitchen with oven, cooktop, and rangehood
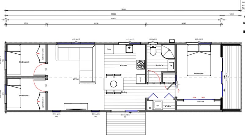
- 1, 2, or 3 bedroom layouts available
- Bathroom and laundry included
- Walk-in pantry and wardrobe options
- Gas hot water system
- Purefloor laminate flooring with carpet to bedrooms
- Choice of colour schemes
Pricing (Includes GST) Advertised price is for the two-bedroom plan, as shown in photos.
- One-bedroom plan (two sets of French doors): $206,800 incl. GST
- Three-bedroom plan: $208,800 incl. GST
Granny Flat / Minor Dwelling Rules (from 15 Jan 2026) Many granny flats up to 70 m² may be built without a building consent, provided exemption requirements are met. Council notification, planning rules, services, access, and development contributions may still apply. Designs over 70 m² require standard consenting.
Exclusions Price excludes transport, foundations and site works, council and consent fees, development contributions, and all site services and connections unless agreed otherwise.
Custom designs available. Nationwide delivery for accessible sites.
Enquiries / Viewings Blair – 021 247 2693
Details
Shipping & pick-up options
| Destination & description | Price | |
|---|---|---|
| To be arranged | N/A | |
| Pick-up available from Paeroa, Hauraki, Waikato | Free | |
Payment Options
Cash, NZ Bank Deposit
Questions & Answers (7)
Can you please let me know which one is for sale at this price please. larz9 (199 • 7:25 pm, Sun, 14 Dec )Hi there , Please give me a call on 0212472693 . Cheers Blair Panorama Transportables smithers34 (59 • Sunday, 14 December 2025 )Which is for sale? jono007 (210 • 10:38 pm, Thu, 18 Dec )Hi there , All of our stock is sold , we mostly build to order . Price is for one and two bed , three bed is currently $201800 Cheers Blair 0212472693 smithers34 (59 • Thursday, 18 December 2025 )Hi, is the 3-bed at $201K fully code compliant? That is has everything needed for the building consent process? No extras needed? Happy holidays! andrea313 (139 • 10:54 am, Fri, 26 Dec )Hi there , Yes fully completed with ccc certification to an extra high wind zone . Heat pump is an extra $2700 And plumbing waste wipes are through floor ready for onsite connections . Feel free to call and discuss further. Cheers Blair Panorama Transportables 0212472693 smithers34 (59 • Friday, 26 December 2025 )Hi Blair, do you arrange transportation and piling? gondwana2 (421 • 8:54 am, Tue, 30 Dec )Hi there, Yes, we can arrange delivery. We don’t normally organise foundations; however, if your site is within our local area, we may be able to assist with this as well. Please feel free to let us know your location and we can advise further. Kind regards, Blair Panorama Transportables 021 247 2693 smithers34 (59 • Tuesday, 30 December 2025 )Thanks Blair, I'll txt you our address. gondwana2 (421 • 9:56 am, Tue, 30 Dec )👍 smithers34 (59 • Tuesday, 30 December 2025 )Hi, do you have a one-bedroom available for viewing? It would be great to actually see one. Thanks sarah22 (655 • 5:12 pm, Sun, 4 Jan )Hi there , Yes we do have a one bed which is under construction with the exterior complete, We also have a number of others to look at also . Flick me a message or call to book in a viewing Cheers Blair 0212472693 smithers34 (59 • Sunday, 4 January 2026 )
There is 1 unanswered question on this listing



















