


Description
PRE-ORDER SHIPMENT DUE DECEMBER 2025
Kit Set Nordic Retreat Pod comes prepainted in Grey with White Trim as per the exterior photo.
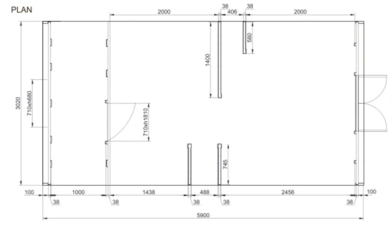
Made of spruce, the pod has an inside living space of 15.8m2 and is suitable for 2-4 people. Ideal as guest accomodation at a bach or sleep out.
SUPPLIED AS KIT SET
Pod made from spruce Roof covered with black bitumen shingles Double opening window in the back wall Double doors with a lock and the double glass windows Two windows in front wall Inner wooden door for WC room Mini wardrobe and shelves Two rooms inside Insulated Walls Insulated Roof Insulated Floor
Included furniture:
Queen Bed Frame Table 2x Wooden Pouf Wooden Bench Shelf above Bed
Please note the toilet and shower fixtures are not included.
Freight is not included.
Available ex Rolleston.
Please contact us to view our huge range of other products including Hot Tubs, Saunas and Grill Cabins.
Details
Shipping & pick-up options
| Destination & description | Price | |
|---|---|---|
| To be arranged | N/A | |
| Pick-up available from Selwyn, Canterbury | Free | |
Payment Options
Cash
Questions & Answers (1)
Is it possible to add a toilet and shower? str8.2.poolroom (366 • 10:36 am, Fri, 19 Dec )H There, yes there is a room that you can put a toilet and shower in. Thanks nordic_concepts (5 • Friday, 19 December 2025 )









