


Description
Only 3 Available
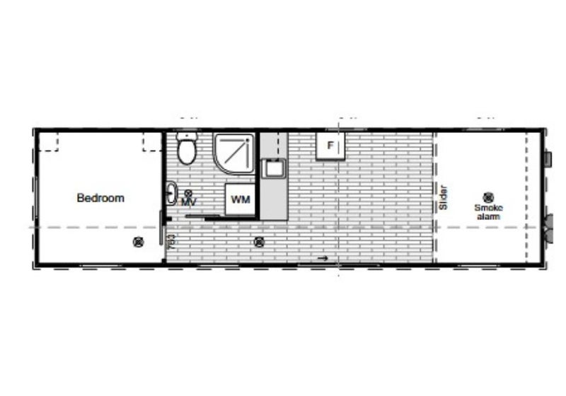
Built right. Built to last. This 10.7m Long Cabin is a properly built tiny home, constructed locally and fully compliant with the NZ Building Code. Designed for year-round comfort, it features double-glazed, thermally broken joinery and full exterior envelope insulation — including high-quality Expol underfloor insulation and batts to the walls and ceiling.
Clad in durable, low-maintenance Weathertex with a Coloursteel roof, this cabin is robust, easy to heat and cool, and designed for long-term living. Inside, a clever divider screen system allows the space to open up completely or close off to create a private bedroom — giving you flexibility as your needs change.
Done right. Done once. This is a smart investment in quality, comfort, and longevity.
Features:
- 10.7m x 2.9m long cabin design
- Built locally to full NZ Building Code standards
- Double-glazed, thermally broken joinery
- Full insulation package including Expol underfloor
- Weathertex cladding – robust and low maintenance
- Coloursteel roofing
- Flexible divider system for open or private living
- Easy to heat, cool, and maintain
Finance available
Was $109,995, NOW $99,995
Browse it. Buy it. Move in.
Ideal for: Tiny home living, long-term accommodation, home office plus living space, or flexible lifestyle living.
Details
Shipping & pick-up options
| Destination & description | Price | |
|---|---|---|
| To be arranged | N/A | |
| Pick-up available from Papakura, Auckland | Free | |
Payment Options
Cash




