


Listing Description
Brand New Pompallier on Ponsonby Development
286 - 306 Ponsonby Road, Ponsonby, Auckland City, Auckland
Price by negotiation
Details
| Attribute | Value |
|---|---|
| Property use | Retail |
| Agency reference | agentpoint-7920593 |
Description
** Joint Sole Agency***
JLL is proud to present to the market for lease Pompallier on Ponsonby, a brand-new luxury retail offering in the sought-after city fringe suburb of Auckland. Situated at the corner of Pompallier Terrace and Ponsonby Road.
With its prime location in the heart of Ponsonby Road, a bustling shopping precinct, Pompallier on Ponsonby offers businesses the opportunity to establish a flagship presence in an affluent Auckland area or find a brand-new space to set up shop. The anchor tenant, Rodd and Gunn, including a Lodge Bar, will occupy 452sqm of retail space and 80sqm of alfresco dining. Another premium international retailer has already secured a space, with additional areas available for fashion, hospitality or retail stores.
In addition to the retail and hospitality spaces, Pompallier on Ponsonby will feature residential and hotel operations on the upper floors, providing an expanded customer base and a true community hub. The development presents a unique opportunity for businesses to benefit from the reputation of Ponsonby as a premier Auckland suburb.
Key Features:
- Prime location in the heart of Ponsonby, offering high visibility and convenient access to the CBD and motorways.
- Premium retail and hospitality spaces, including flagship stores and alfresco dining areas
- Mixed-use development with future residential and hotel operations, creating a true community hub.
- Architecturally designed with a blend of heritage and modern elements, providing a unique laneway experience.
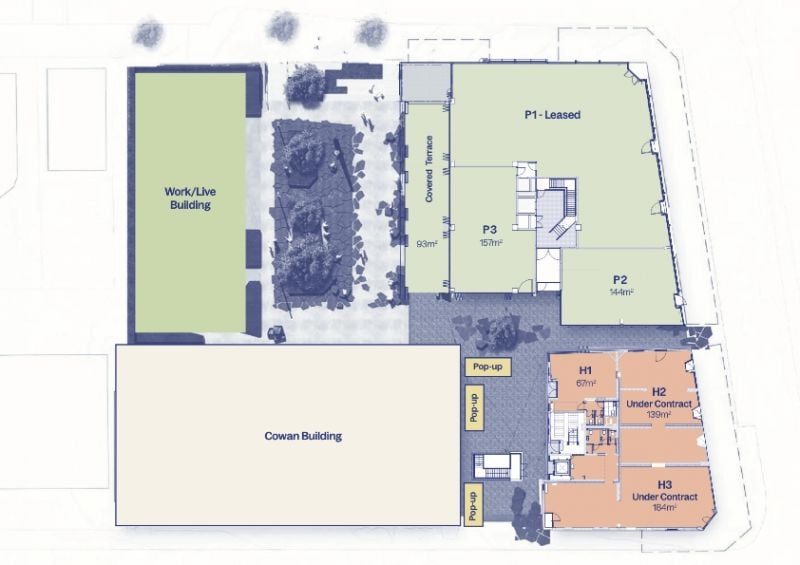
- Exceptional amenities, including public basement car parks with EV charging stations and a 100% NBS rating. Tenancy Outline:
- H1 - 67 sqm hospitality space with laneway seating.
- P3 - 157 sqm hospitality space with 93 sqm covered terrace.
- P2 - 144 sqm premium retail offering facing Ponsonby Road.
For more information regarding this prestigious retail offering please contact your JLL retail leasing specialists below.
Property Files

Discover more about this property.
Request the files from Ranesh.







