


Listing Description
Historic Raetihi BNZ - Live & Work?
59 Seddon Street, Raetihi, Ruapehu, Manawatu / Whanganui
Details
| Attribute | Value |
|---|---|
| Property use | Tourism |
| Capital value (CV) | $318,000 |
| Viewing instructions | By appointment |
| Property ID# | JFZ330 |
Description
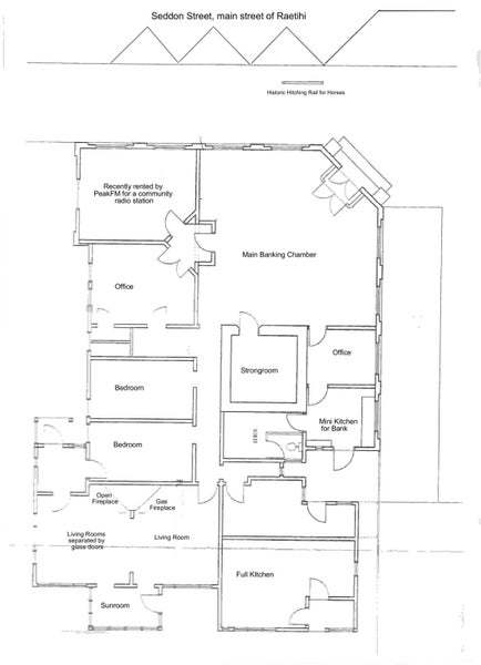
Own a significant piece of Ruapehu District history with this magnificently restored, former Bank of New Zealand building in Raetihi.
Two dedicated art patrons have lovingly restored this magnificent 300m2 building over the last 15 years. Designed by the esteemed architect Joshua Charlesworth in 1911, this landmark property stands as a testament to the town's prosperous past.
Boasting a distinctive 'Colonial Composite of Tuscan-Roman-Ionic design', the building features a grand banking chamber with potential for a myriad of uses.
Original features, including impressive columns, embossed window glass (one remaining), and a strong room, add to its unique charm. The property includes the manager's accommodation extensions (nearly half the 300m2 building) added from 1938, offering further versatility to a new owner.
Classified by Heritage New Zealand as a Category 2 Historic Place, this building offers more than just space—it offers a connection to Raetihi's heritage. Ideal for a unique retail or hospitality space, or as a stunning residence with the potential to earn income from the commercial space facing the main street of Raetihi.
The vendors also own two adjoining sections for a total of 2,530m2 of commercially zoned land. They wish to sell the sections together with the old BNZ building so the 3 properties are being sold as a package with an asking price of $500,000 + GST (if any).
Contact David Bradford at Bradford Real Estate NZ for a Property Information Report or to arrange an exclusive viewing of this iconic property. david@bradfordrealestatenz.net.































