27 Gilkison Street, Halfway Bush, Dunedin
SOLD: $660,000
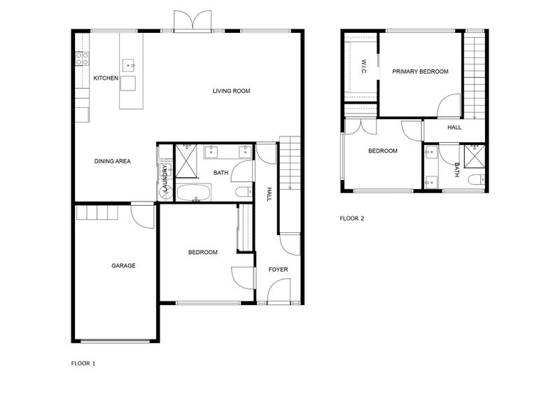
Property details
Cross Lease
162m² more or less
3 Bedrooms
2 Bathrooms
1 Garage parking
1 Off-street parking
Stay updated on this property!
Receive updates on value estimates and be the first to know if it goes on sale.


Harcourts Dunedin
Carissa Fraser
Recent sales
19
Experience
4y
Sale history timeline
08 August 2025
Sold
$660,000

01 June 2025
Capital Value
$620,000
01 July 2022
Capital Value
$630,000
01 July 2019
Capital Value
$465,000
30 October 2017
Sold
$425,000
01 July 2016
Capital Value
$345,000
01 July 2013
Capital Value
$340,000
17 February 2013
Sold
$345,000
01 January 2010
Decade built
2010
Local Schools
While we've done our best to correctly list schools in this location, school zone information may not be exact, so please double check with the school.
Nearby Sold Properties
View all
Properties for sale around Halfway Bush
View all

















































