Skip to site navigation Skip to main content
main content
Sold on 09 Mar 2026

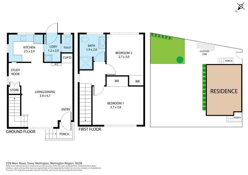
1/29 Main Road, Tawa, Wellington

SOLD: Sale price to be provided
  • 2 Beds
  • 1 Bath
  • 2 Parks

Property details

Cross Lease
70m² more or less
2 Bedrooms
1 Bathroom
1 Garage parking
1 Off-street parking
Track home card illustration

Stay updated on this property!

Receive updates on value estimates and be the first to know if it goes on sale.

HomesEstimate

Updated today

Updated: 16 Apr 2026

$490K - $555K

What is the HomesEstimate?

RentEstimate

Updated: 02 Apr 2026

$450 - $580 /week

Rental yield

5.1%

What is rental yield?

Sale history timeline

Local Schools




While we've done our best to correctly list schools in this location, school zone information may not be exact, so please double check with the school.

Thinking of selling?Determine your property's value with an appraisal
We are upgrading some of our systems
Learn more