


Listing Description
Patumahoe Village Living at Its Best
Patumahoe, Franklin, Auckland
Details
| Attribute | Value |
|---|---|
| Property type | House |
Description
LIFESTYLE & LOCATION! Welcome to 3 Patty Lane, part of a quality new subdivision developed by the locally owned Searle Group. With titles issued and the Watercare Infrastructure Growth Charge (IGC) already paid, this flat 804m² site is fully ready for your build.
Enjoy a short walk to the heart of Patumahoe village — including the highly regarded Patumahoe School, 4 Square supermarket, Butcher’s Café, The Village Bar & Grill, and Mr Henry’s.
Sensible covenants ensure long term value and protect the quality of the neighbourhood. A rare chance to secure the charm of village life with the comfort of a modern, energy efficient Green Homes build.
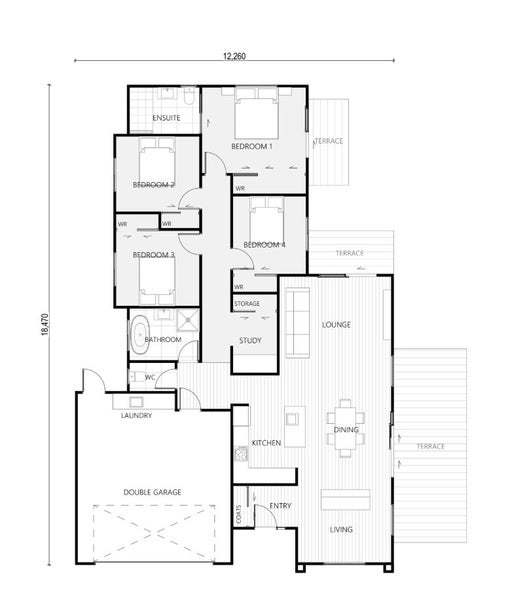
YOUR HOME — THE MANAIA (180m²) The Manaia 180 is a spacious, light filled home designed for families who want comfort, flow, and a premium living experience. Featuring a raking ceiling through the kitchen, dining and living zones, this plan brings a real sense of volume and warmth the moment you walk in the door. It includes two living areas, a dedicated study, and bedrooms positioned privately toward the rear — perfect for growing families or those wanting extra room for guests or working from home.
Key Features
- 4 bedrooms
- Master bedroom with ensuite
- Two living areas for flexible family living
- WFH Office / study
- Raking ceiling over main living areas
- Double internal access garage
- Multiple outdoor living spaces
- Energy efficient construction
- improved airtightness & thermal detailing
- Designed and built within Green Homes NZ’s ISO50001 energy management certified system — the only NZ builder with this national certification A beautiful balance of space, style, and performance in one of Franklin’s most desirable townships.
WHY BUILD WITH GREEN HOMES AUCKLAND Green Homes Auckland builds homes engineered for comfort, efficiency, and long term performance. Every build follows our GreenSpec™ standard — a structured, energy focused specification that improves insulation, airtightness, moisture control, and year round living comfort.
Combined with Green Homes NZ’s ISO50001 certification for energy management, your home benefits from independently audited processes that deliver real world efficiency gains and lower running costs over time.
We don’t just build homes. We build healthier places to live — for the long run.
PACKAGE INCLUDES
- Manaia 180m² home
- 804m² titled section (3 Patty Lane, Patumahoe)
- Fencing included
- Finished lawn
- Watercare Infrastructure Growth Charge (IGC) included
- Designer kitchen + appliances
- Concrete driveway, paths & patio
- Floor coverings throughout
- High performance insulation & glazing
- Quality fittings & finishes
YOUR OPPORTUNITY Patumahoe is one of Franklin’s most sought after lifestyle villages, and new titled sections with IGC paid are rare. Listings in the area consistently attract strong demand thanks to the community feel, schooling, and proximity to Pukekohe. At $1,395,500, this package delivers a high performance Green Home on a premium section in a premium location — exceptional value for buyers wanting quality and comfort without compromise.
CONTACT Rodger Scott — General Manager, Green Homes Auckland
Let’s walk the site together and explore how the Manaia can be tailored to your lifestyle vision at Patty Lane.
Open home times
Local Schools
While we've done our best to correctly list schools in this location, school zone information may not be exact, so please double check with the school.





