


Listing Description
Build First Class in Conmara Estate Clevedon
Lot 39, Clevedon, Manukau City, Auckland
Asking price $2,189,000
Details
| Attribute | Value |
|---|---|
| Property type | House |
| In the area | • Situated just a short 20-minute drive from the Manurewa Motorway Access, |
| Property ID# | JBE703 |
| Agency reference | 2a |
Description
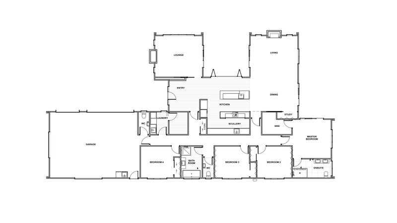
Build new; Build for you. This prestigious four-bedroom, triple garage property sets the standard for exclusivity and comfort.
If you're looking for a home with a grand master bedroom suite, ample garage space, media room or multiple living areas, designated home office space, separate laundry room, designated store room, then this one's for you. If these features are essential must-haves on your list, and this first class property checks all the boxes.
Create your dream home by joining us to personalize any aspect of design; Work with our team to refine your plan and select your interior design and exterior colors, choose your kitchen configuration, appliances and wardrobe layouts - all from the very best, premium materials with industry-leading guarantees.
ALREADY YOURS PREMIUM JENNIAN INCLUSIONS:
Premium schist, oblique and plaster cladding. Scissor trussed ceiling to dining and living areas. Ducted heating system. Premium kitchen allowance. Thoughtfully designed by Kitchen Inspirations and includes a design consultation. Laundry cabinetry and sink. Fixed Velux skylights Fully tiled ensuite shower, Slateforma trays and tiled main bathroom shower Fisher & Paykel appliances. Dishwasher, induction cooktop, pyrolytic oven, rangehood & waste disposal. Windsor door hardware Wardrobe & storage cupboard shelving Sectional automatic garage door with remote Quality Belgotex or Cavalier Bremworth carpet and other quality floor coverings including tiles Garage carpet Alarm system and hardwired smoke alarms Driveways & paths concrete allowance All-inclusive siteworks & drainage Watercare contribution
-
At Jennian Homes, our dedication to using premium-grade materials and craftmanship sets us apart. This commitment guarantees more than just a hassle-free, maintenance-free living experience; it assures you that your home is constructed to the utmost standards, promising years of enjoyment and peace of mind. Don't settle for anything less than excellence.
2a
Open home times
Property Files

Discover more about this property.
Request the files from Louise.









