


Listing Description
Listed: Thu, 8 Feb
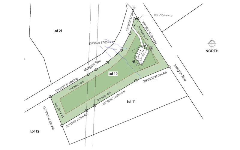
Full hectare lifestyle block living in Kaukapakapa
51 Morgan Rise, Kaukapakapa, Rodney, Auckland
Details
Other Features
| Attribute | Value |
|---|---|
| Property type | House |
| Agency reference | KAU09 |
Description
Experience true Kaukapakapa lifestyle living on a full hectare of land — space, freedom, and flexibility built in from day one. This thoughtfully designed 232m² home embraces its rural setting with expansive windows and multiple sliders, creating a seamless flow between indoor living and the outdoors.
KAU09
Open home times
No times scheduled
Local Schools
While we've done our best to correctly list schools in this location, school zone information may not be exact, so please double check with the school.





