


Listing Description
MUST SELL - Build New or Buy the Land!
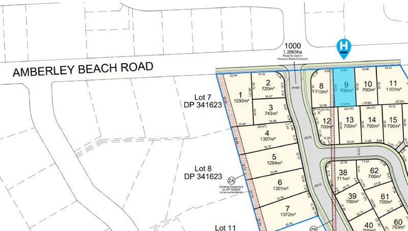
70 Amberley Beach Road, Amberley, Hurunui, Canterbury
Price by negotiation
Details
| Attribute | Value |
|---|---|
| Property type | House |
| Parking | 2 garage spaces |
| Agency reference | RN27782 |
Description
To download property files, copy and paste the following link into your browser: https://www.propertyfiles.co.nz/property/883490004
Serious sellers - this will be sold! Your chance to secure a 700m2 section with approved plans for a 170m2, 4-bed, 2-bath family home in a premium location.
- Buy the land ONLY - use your own builder OR
- Go ahead with the build - quality spec + custom options
Featuring open-plan living, second lounge, master ensuite, stone benchtops, Bosch appliances, heat pump, LED lighting, brick cladding & great indoor-outdoor flow. 10-Year Master Build Guarantee + 12-month maintenance period included if you build with us.
Motivated vendors - bring your offer!
Flexible terms available!
Act fast - opportunities like this don't last!
Call now - secure the land, secure the build, secure your future.
Please be aware that this information may have been sourced from RPNZ/Property Smarts/Land Information New Zealand/Christchurch City Council/CERA and we have not been able to verify the accuracy of the same.













