


Listing Description
Modern 4-Bedroom Home with Substantial Land
Darfield, Selwyn, Canterbury
Details
| Attribute | Value |
|---|---|
| Property type | House |
| Property ID# | JQQ293 |
Description
Lot 4 Ryelands subdivision. Title issued mid year.
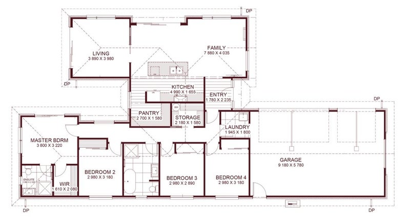
Step into elegance and comfort with this stunning four-bedroom, two-bathroom residence, perfectly designed for families of all sizes. Enjoy the luxury of two inviting lounges, ideal for relaxed family living or effortless entertaining.
The expansive triple garage provides generous space for vehicles and additional storage, keeping everything organised and clutter-free.
Bathed in natural light, the thoughtfully designed floor plan showcases stylish finishes and creates a warm, welcoming atmosphere throughout.
Features: Bosch appliances Quality Bathroom Fixtures Free standing bath Heat pump Attic storage and ladder Built in joinery to all wardrobes Kitchen stone benchtop walk-in pantry Digital front door lock 70m² plain concrete and driveway crossing Boundary fencing 10-year master builder's guarantee 12 months maintenance
For more information, contact Steven on 021 2240127 or email Steven@kadbuild.co.nz. Visit http://www.kadbuild.co.nz for more information.
Show Home - 1 Monarch Drive, Rolleston Open Monday to Friday, 9am to 4pm and Sunday, 12pm to 4pm
Please note: The render is indicative only. A range of alternative floorplans is available, allowing you to customise your home to perfectly suit your lifestyle.
Why Choose KAD Build As a trusted, locally owned builder, KAD Build is committed to delivering homes that stand the test of time. Our plans are carefully considered, our craftsmanship is meticulous, and every home is backed by a Master Build Guarantee, giving you confidence and peace of mind from start to finish.
Open home times
Local Schools
While we've done our best to correctly list schools in this location, school zone information may not be exact, so please double check with the school.



