


Listing Description
Turnkey in Darfield
Pea Drive, Darfield, Selwyn, Canterbury
Details
| Attribute | Value |
|---|---|
| Property type | House |
| Property ID# | JSJ167 |
Description
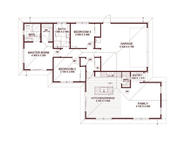
Step into modern living with this thoughtfully designed 3-bedroom turnkey home, built to offer the perfect balance of comfort, style, and practicality — with everything taken care of for you.
At the heart of the home is a spacious open-plan living area, ideal for entertaining guests or unwinding with family. The seamless layout creates a warm, inviting space you’ll love spending time in.
The master bedroom features a generous walk-in wardrobe, combining everyday convenience with a touch of luxury. Two additional bedrooms provide flexibility for growing families, guests, or a home office setup.
Key Features:
Stylish bathroom with quality fixtures and a freestanding bath Heat pump for year-round comfort Attic storage with ladder for added space Built-in joinery in all wardrobes Modern kitchen with Bosch appliances and stone benchtop Digital front door lock for enhanced security 10-year Master Build Guarantee 12-month maintenance period for added peace of mind
As a turnkey package, this home offers a simple, stress-free building experience with a fixed price and no progress payments — making it an ideal option for those wanting certainty and ease throughout the process.
This home blends smart design with quality finishes, creating a space that’s ready to move into and enjoy. The Quartz Reef plan is one of our most popular designs, offering a functional layout without compromising on style.
Looking for something a little different? We offer a wide range of alternative floorplans, giving you the flexibility to tailor your home to suit your lifestyle and vision.
Don’t miss this opportunity — enquire today and take the first step toward your new home.
For more information, contact Steven on 021 2240127 or email steven@kadbuild.co.nz . You can also visit http://www.kadbuild.co.nz .
Show Home Location: 1 Monarch Drive, Rolleston Open Monday to Friday, 9:00am – 4:00pm Sunday, 12:00pm – 4:00pm
Please note: Images/renderings are indicative only.
Open home times
Local Schools
While we've done our best to correctly list schools in this location, school zone information may not be exact, so please double check with the school.







