


Listing Description
New Opportunity In Nobeline
256 Lincoln Rolleston Road, Rolleston, Selwyn, Canterbury
Details
| Attribute | Value |
|---|---|
| Property type | House |
| Parking | 1 garage spaces |
| Agency reference | 1742001 |
Description
Secure your new home with just a $1,000 deposit and no progress payments—simply pay the balance on settlement with this turnkey house and land package.
Completion is scheduled for mid to late May, making it an easy, stress-free move into a brand-new home.
Located in the growing Nobeline subdivision in Rolleston, this home offers a smart combination of modern style and practical design on a low-maintenance 340m² section.
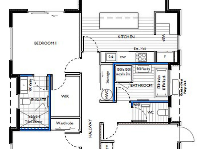
With a well-designed 138m² floor plan, the home features three generous bedrooms, including a master with walk-in wardrobe and private ensuite. A centrally located family bathroom and separate WC provide added convenience for everyday living.
The open-plan kitchen, dining, and living area creates a comfortable central hub, flowing seamlessly to a sunny outdoor patio and fully landscaped backyard—perfect for relaxing or entertaining.
Positioned in a fast-growing community close to local amenities, and schools, this home is an excellent option for first-home buyers, downsizers, or investors looking for a low-maintenance, modern property.
Backed by a 10-year Master Build Guarantee, you can purchase with confidence.
Get in touch today to learn more—homes like this don’t stay on the market for long.
Open home times
Property Files
Discover more about this property.
Request the files from Colin.
Local Schools
While we've done our best to correctly list schools in this location, school zone information may not be exact, so please double check with the school.















