


Listing Description
Great Family Opportunity In Nobeline
240 Lincoln Rolleston Road, Rolleston, Selwyn, Canterbury
Details
| Attribute | Value |
|---|---|
| Property type | House |
| Parking | 2 garage spaces |
| Property ID# | JSC242 |
| Agency reference | 1755053 |
Description
Get into your new home with just a $1,000 deposit. No progress payments – simply pay the balance on settlement with our turnkey house and land packages.
Positioned in the new, Nobeline subdivision in Rolleston, this brand-new home currently under construction offers the perfect balance of modern style and practical design on a 575sqm section.
Large sliding doors connect the living area to the sunny outdoor patio and landscaped backyard, creating an indoor-outdoor flow. The fully landscaped section includes ready lawn, garden beds, specimen planting, and fencing.
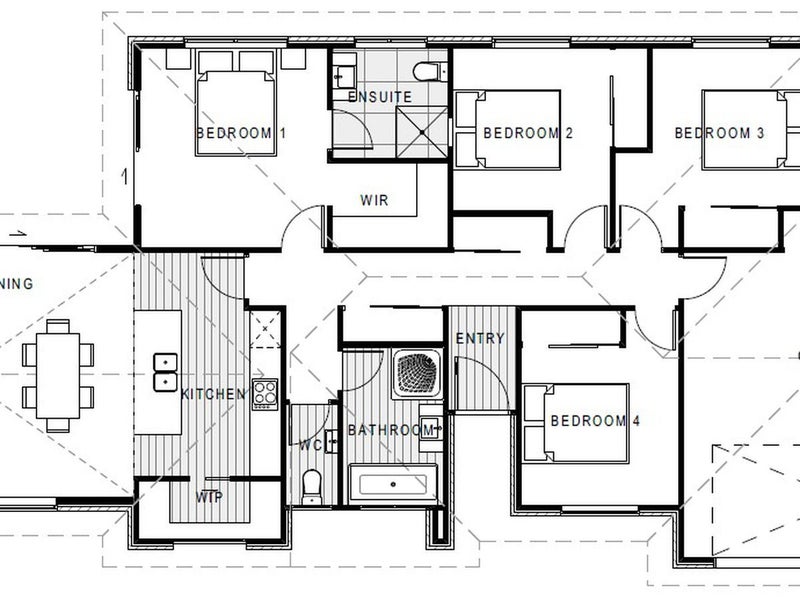
With a 183sqm floor plan, the home features four well-proportioned bedrooms, including a master suite complete with a walk-in wardrobe and private ensuite. The remaining bedrooms are serviced by a centrally located family bathroom with separate WC, creating a functional layout ideal for families, first-home buyers, or investors.
Floor Area: 183m² (approx.)
Section Size: 575m² (approx.)
Bedrooms: 4 generously sized double bedrooms with wardrobes
Bathrooms: 2 (including ensuite with tiled floor and shower)
Living: Open-plan kitchen, dining & living with seamless indoor-outdoor flow
Garage: Internal access double garage
Features & Inclusions
Designer kitchen with wrap around pantry, Bosch appliances, and soft-close cabinetry
Open-plan living & dining with plenty of natural light and sliders to the patio.
Master suite with double wardrobe and ensuite (tiled shower, wall mounted vanity, quality fittings).
Main bathroom with full-sized bath, separate shower, and modern fixtures.
Heat pump for year-round comfort.
Quality flooring package including carpet and vinyl planking throughout.
LED lighting and modern electrical plan, including data/TV points
Double glazing with thermally broken aluminium joinery.
10-Year Master Build Guarantee for complete peace of mind
Positioned in a growing community, close to all your everyday wants and needs, this low-maintenance home will be snapped up quickly.
Get in touch today.
Open home times
Property Files
Discover more about this property.
Request the files from Colin.
Local Schools
While we've done our best to correctly list schools in this location, school zone information may not be exact, so please double check with the school.




