


Listing Description
Spectacular family living on private 820m² section
Lot 143 Woodlands Estate, Woodend, Waimakariri, Canterbury
Asking price $895,500
Details
| Attribute | Value |
|---|---|
| Property type | House |
| In the area | Rangiora, Woodend, Ravenswood, Pegasus, beaches, playgrounds, recreation areas and green spaces |
| Parking | Internal access double garage, plus off-street parking |
| Agency reference | 143 Woodlands Est |
Description
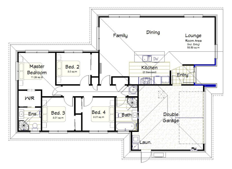
Fixed price contract—no surprises, no hidden costs! Plus, we include hard landscaping: paths, patios, internal fences, gate, letterbox & clothesline—all done for you. Designed for quality family living, and easy for entertaining. With plenty of room for everyone, this spacious 4 double bedroom home packs a lot into this 162.1m² floor plan.
Sited well to maximise the large 820m² rear section (with private access) offers an effortless lifestyle, plenty of privacy, and outstanding value.
The island bench is positioned with an outlook and is part of a spacious light and bright open plan family, dining and lounge space. Extend your living outdoors through two sets of sliding glass doors in the family space, which will also allow sunshine and warmth to flood in.
The master bedroom suite includes a great walk-thru wardrobe and private ensuite. The additional three double bedrooms share the well-appointed family bathroom.
Functionality is built in – this floor plan comes complete with two storage cupboards and internal access to the double garage. The garage is equipped with an insulated garage door, insulated walls and ceiling, and garage carpet.
This House & Land Package features:
- 4 double bedrooms
- Master bedroom includes walk-thru wardrobe and ensuite
- Family bathroom includes shower and bath
- Open plan kitchen, dining, family and lounge space
- Fully-inclusive designer kitchen with Fisher & Paykel appliance and Tristone benchtops
- 8.0k/W Mitsubishi heatpump (Wi-Fi Control)
- 250L hot water cylinder
- Brick & Linea feature exterior cladding
- Long run roof iron finish
- Internal access double garage, plus off-street parking
This section is titled, addressed 10 Cleaver Street, so we can get building quickly. Choose this design, customise this plan, or talk to me about a custom design & build on this site to suit your lifestyle.
Deborah Platt 027 244 1259 deborah.platt@goldenhomes.co.nz
Check out our website, or contact me for full information and brochure on this listing. https://goldenhomes.co.nz/house-and-land/canterbury/lot-143-woodlands-estate



















