


Listing Description
Discover Your Dream Home at Aurora!
3 Halo Green, Aurora Subdivision, Peacocke, Hamilton, Waikato
Details
| Attribute | Value |
|---|---|
| Property type | House |
| Property ID# | JRY023 |
Description
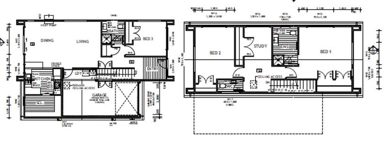
Introducing a fantastic double-storey, 3-bedroom house & land package at 3 Halo Green in Aurora, Peacockes, Hamilton. This beautifully designed home offers ample space for the whole family with:
Open Plan Living and Kitchen with Scullery Downstairs Bedroom with Bathroom Upstairs Bedroom, Study, and Master with Ensuite Aurora is set to be a vibrant new community for you and your family. Enjoy:
Elevated Sites with Striking Views Excellent Connectivity to the Wider Peacocke Area Over Four Hectares of Open Space and Reserves Children's Playground, Convenience Shops, and a Café Experience luxury living with easy access to local amenities in a family-friendly environment. Enquire about this amazing property today and secure your place in Aurora!
*NB images are not of the real home - indicative only.
Get in touch with the Waikato team 07 949 7770 Waikato@jennian.co.nz
Open home times
Local Schools
ZONED 218 Cambridge Road
1.4 km
Contributing (Primary), State, 620 enrolled
ZONED 26 Berkley Avenue
1.6 km
Restricted Composite (Year 7-10) (Intermediate & Secondary), State, 799 enrolled
UNZONED 46 Annebrook Road
2.2 km
Full Primary (Primary & Intermediate), State : Integrated, 115 enrolled
While we've done our best to correctly list schools in this location, school zone information may not be exact, so please double check with the school.





