Skip to site navigation Skip to main content
main content
Fletcher Living Auckland South
Leslie Aguas Leslie Aguas

24 Wintergarden Avenue, Karaka

Asking price $1,225,000

Listing Description

Listed: Thu, 15 Jan

Designed to Elevate Every Day

24 Wintergarden Avenue, Karaka, Franklin, Auckland

Asking price $1,225,000

Details

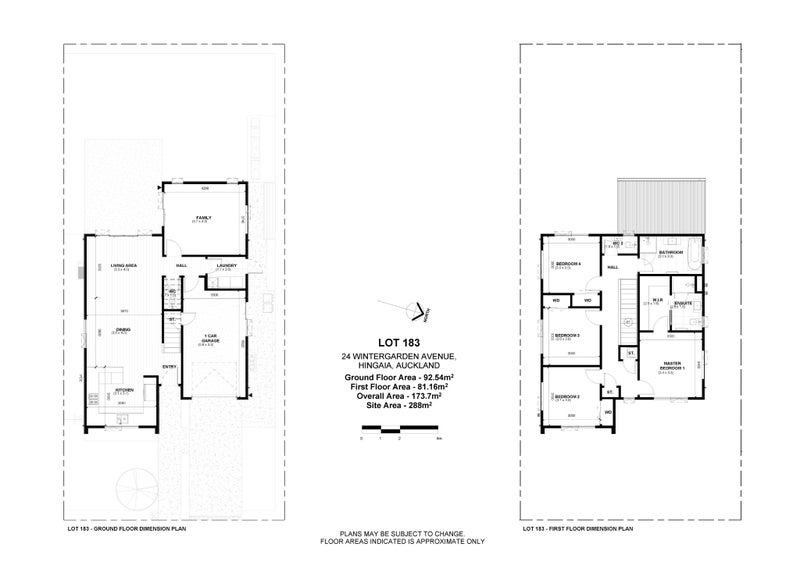
  •   4 Beds
  •   2 Baths
  •   173m² Floor
  •   288m² Land
Other Features
  •   1 Ensuite
  •   3 Separate toilets
  •   1 Garage parking
AttributeValue
Property type
House
Parking
Off-street parking space

Description

Experience a home that doesn't just welcome you in-it lifts you up. This beautifully crafted two-level, four-bedroom residence is designed for ease, comfort, and the kind of living where every day feels a little more meaningful.

From the moment you step inside, the heart of the home draws you in. A thoughtfully designed kitchen-complete with Caesarstone benchtops and sleek F&P appliances-anchors the space with elegance and purpose. It flows seamlessly into the dining and living areas, creating an open, inviting atmosphere that extends naturally to a private patio and landscaped garden. It's a setting made for connection, celebration, and those quiet moments that stay with you. This is the essence of inspired everyday living.

The ground floor offers even more room to grow, with a versatile family space ready to become whatever your lifestyle calls for-an office, a playroom, a media retreat. A conveniently placed WC and discreet laundry enhance the effortless rhythm of daily life, while the internal garage and additional carpad add practical ease to your routine. It's all part of a design that supports living with intention.

Upstairs, four generous double bedrooms provide restful sanctuaries for everyone. The primary suite elevates the experience with its own ensuite and walk-in wardrobe, offering a private retreat at the end of each day. A family bathroom with a soothing bath, a separate toilet, and abundant storage complete the upper level, ensuring comfort and calm in every corner. This is where thoughtful design meets serenity.

Please note that the photos and renders shown represent a comparable property, offering a glimpse into the quality and style you can expect.

**Home features include: ** *4 bedrooms (master with WIR & ensuite) *2 separate WC *2 living areas *Open plan living, dining and kitchen *Single garage, with car pad *Floor to ceiling tiles to bathroom *Roller blinds installed *Heat pump *Double glazing *Security alarm system *Private outdoor garden with courtyard area *Fully landscaped *Master Build Guarantee

Located in the stunning waterside location of Park Green, Karaka, this home is nestled within a vibrant neighbourhood full of amenity. With beautiful inlet walking tracks and cycleways, a newly opened Neighbourhood Centre featuring a cafe, superette and hairdresser plus a primary school and early childhood centre, there is plenty for everyone to enjoy.


Open home times

No times scheduled

Property Files

Leslie Aguas

Discover more about this property.

Request the files from Leslie.




Local Schools




While we've done our best to correctly list schools in this location, school zone information may not be exact, so please double check with the school.



Fletcher Living Auckland South
Leslie Aguas

Leslie Aguas


Advertisement

Agent's details

Leslie Aguas

Leslie Aguas

Grace Astalia

Grace Astalia

Enquire about the property

Platinum Partner
Learn More

Fletcher Living Auckland South

Share this listing

Facebook
Twitter
We are upgrading some of our systems
Learn more