


Listing Description
Affordable Brand New Homes –Smart Entry level
67 Rorotu Avenue, Drury, Papakura, Auckland
Details
| Attribute | Value |
|---|---|
| Property type | House |
| Parking | 1 Off-Street |
| Agency reference | ONE20796 |
Description
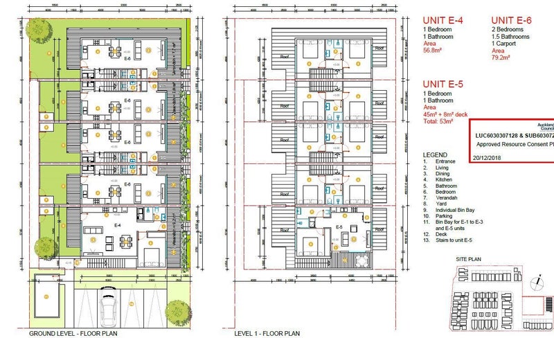
An exciting opportunity to own a brand-new home in the heart of the fast growing Drury community! These stylish homes ( Unit1, 3, 5) are designed for modern living and will be ready soon.These affordable homes are only for the First Home Buyers ( buyer conditons applied).
Options Unit 1 - 1 bedroom, 1 bathroom, 1 living home Unit 3 - 2 bedrooms, 1 open living, 1.5 bathroom and 1 car park Unit 5 -2 bedrooms, 1 open living, 1.5 bathroom and 1 car park
Features:
- Affordable price point – a rare chance to own in this sought after area
- Walking distance to a local primary school
- Handy to shops, amenities, and motorway access
- Perfect for couples, small families, or investors
- Fresh, modern homes in a welcoming new community
- 10-Year Stamford Building Warranty
- 1 Heat Pump for each home
If you are a first home buyer looking to step onto the property ladder, seeking growth potential in one of Auckland’s fastest-developing suburbs, this is the opportunity you’ve been waiting for.
Act now to secure your home before completion – don’t miss out on this affordable chance to own your home in Drury!
Open home times
Property Files

Discover more about this property.
Request the files from Lily.
Local Schools
While we've done our best to correctly list schools in this location, school zone information may not be exact, so please double check with the school.
Agent's details





