


Listing Description
4-Bed New Build with Full Upgrades & Triple Garage
Darfield, Selwyn, Canterbury
Details
| Attribute | Value |
|---|---|
| Property type | House |
Description
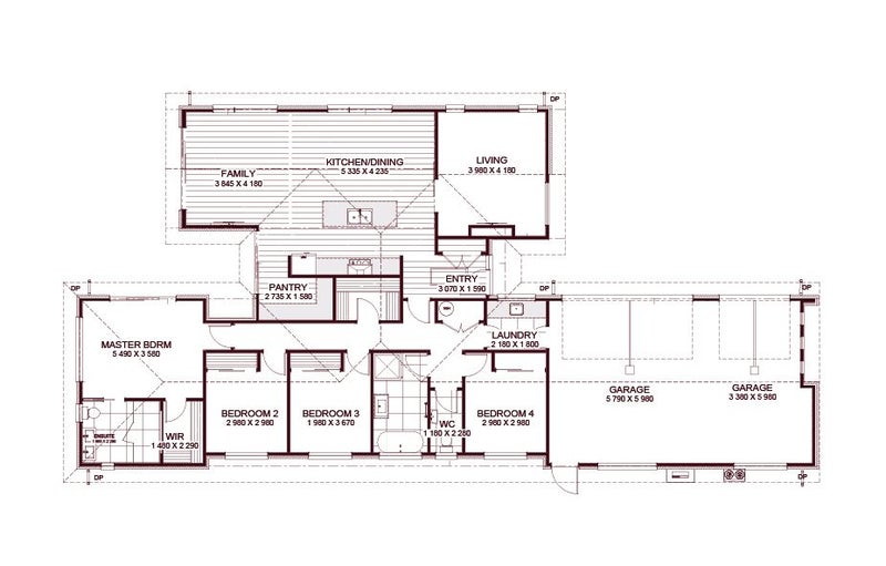
Lot 7 Ryelands, Darfield Titles due May 2026
When you’ve got a generous section, you need a home that makes the most of it. This four-bedroom design on Lot 7 in Ryelands does exactly that.
With upgraded specifications throughout, this large 241m2 home blends modern style with family functionality. Enjoy two spacious living areas, a designer kitchen with walk-in pantry, four bedrooms, two bathrooms plus a separate W/C, built-in laundry, and a triple-car garage.
Included features: Boundary fencing Skylight Double vanity in ensuite Vanity in W/C Barn door feature Laundry cabinetry Tiled shower in ensuite Ducted heat pump system Designer kitchen with stone benchtop, built-in rangehood & generous walk-in pantry Bosch appliances Attic with stairs & storage space Laminate flooring Garage carpet 10-Year Master Build Guarantee
Plus, design every detail your way – from bricks and cladding to joinery and roofing colours, it’s all customisable. And if this floor plan isn’t quite right, we’ll tailor one to suit – at no extra cost.
Contact Kelvin Delamore on 021 213 2887 or email sales@kadbuild.co.nz for more information
Showhome: 1 Monarch Drive, Rolleston Mon-Fri 9-4pm Sunday 12-4pm
** Render & photos are indicative** Other designs/Sections available
Open home times
Local Schools
While we've done our best to correctly list schools in this location, school zone information may not be exact, so please double check with the school.



