


Listing Description
$10,000 Dollars Towards Your Deposit
20 Rauawa Lane, Hobsonville, Waitakere City, Auckland
Details
| Attribute | Value |
|---|---|
| Property type | Townhouse |
| Parking | 1 carport spaces |
| Property ID# | JQW475 |
Description
Visit our show home at 16 Waka Moana Drive open daily from 10am - 4pm , except Tuesday from 1pm
We've been building homes for Kiwis for over 113 years and we love helping people take that first big step. If you were counting on the old Government grant, this is our way of keeping your plans on track. Getting into your first home is tough, so we're stepping up. For a limited time, eligible First Home Buyers can receive the Fletcher Living First Home Grant - $10,000 towards your deposit when you choose a Fletcher Living home. Terms & conditions apply*
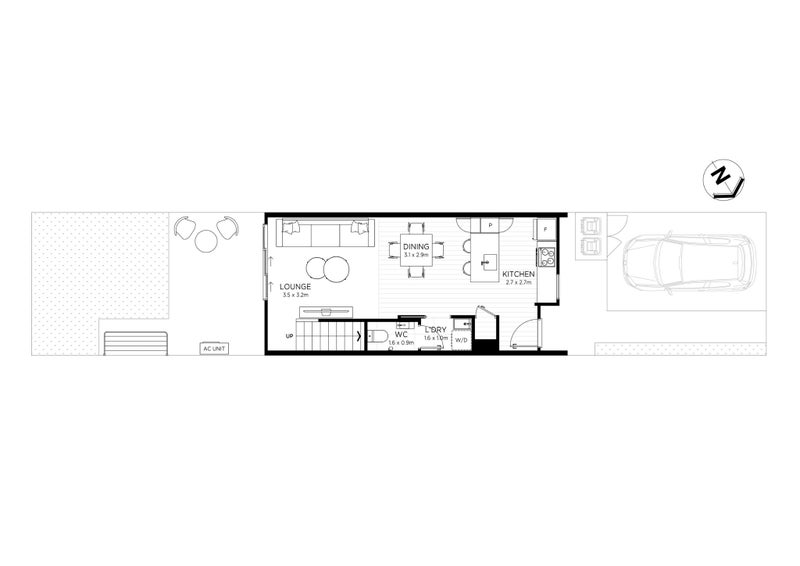
This beautifully finished two bedroom terrace home is your chance to begin that journey. Whether you are stepping into the market for the first time, looking to downsize, or seeking a smart investment, this home offers the perfect blend of comfort, quality, and lifestyle.
Just a short six to eight minute stroll from the vibrant Catalina Bay, you will be surrounded by everything that makes Hobsonville Point special. Ferry access to the city, boutique cafes, a lively farmers market, great restaurants, and the iconic Little Creatures all sit within easy reach. It is a community full of energy, connection, and opportunity.
Built with pride by Fletcher Living, this home reflects the craftsmanship and reliability we are known for. With two generous double bedrooms and a full family bathroom upstairs, plus an open plan kitchen, dining, and lounge that flows seamlessly to your outdoor space, it is designed for modern living. A downstairs powder room, dedicated laundry, and an allocated car pad add everyday convenience.
This is your moment to take the next step toward independence, security, and a home that supports the life you want to build.
Arrange a viewing today and see what is possible!!!
Home features include:
- 2 bedrooms
- 1.5 bathrooms
- Open plan living, dining and kitchen
- Designer kitchen with quality appliances
- Private outdoor patio
- Single car pad
- Heat pump
- Security alarm system
- Double glazing -Garden Shed
- 10 Year Master Build Guarantee
Please note that the bedroom and bathroom photos are of a similar home
Open home times
- to
- to
- to
- to
- to
- to
Property Files

Discover more about this property.
Request the files from Sharon.
Local Schools
While we've done our best to correctly list schools in this location, school zone information may not be exact, so please double check with the school.












