


Listing Description
A Distinguished Piece of Wairarapa History
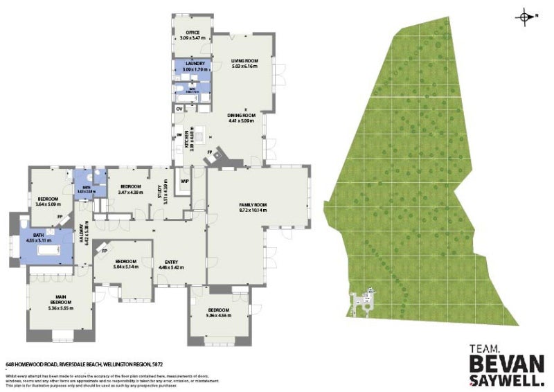
648 Homewood Road, Riversdale Beach, Masterton, Wellington
To be sold by tender (closes on 11 Dec)
Details
| Attribute | Value |
|---|---|
| Property type | Dwelling |
| Parking | 2 car garaging |
| Agency reference | M28630 |
Description
Tucked away in one of the most beautiful parts of the Wairarapa, near Riversdale Beach, Ngaiana Homestead stands as a proud landmark rich in history and charm. Built circa 1913 as part of the original Orui/Riversdale Station, this grand home has been lovingly cared for by only a few owners throughout its lifetime, each preserving its character and elegance.
Sitting proudly on 1.15 hectares (subject to final survey), Ngaiana offers space, privacy, and timeless appeal. The magnificent gardens, originally designed by renowned landscape gardener Alfred Buxton, provide a stunning backdrop of mature trees, sweeping lawns, and peaceful outdoor spaces. Inside, the home offers five bedrooms, multiple bathrooms and multiple living areas, blending classic architecture with modern comfort. The open-plan country kitchen forms the heart of the home, while log burners, original brickwork, and high ceilings add warmth and authenticity.
Within the established grounds, a fully fenced swimming pool enhances the relaxed country lifestyle. Just minutes from the golden sands of Riversdale Beach and approximately 30 minutes from Masterton, Ngaiana enjoys the perfect balance of coastal charm and rural tranquillity, plus a school bus route stop right at the driveway.
An exciting opportunity also exists to purchase the adjoining 1.39-hectare and 15.39-hectare block (subject to final survey), offering endless possibilities - from a private hunting lodge or bush retreat to eco-tours or a family sanctuary.
With its understated elegance, classical beauty, and modern comforts, Ngaiana Homestead is more than a home, it is a legacy. A place where history lives on, waiting for its next chapter to be written by those who truly appreciate something extraordinary.
Viewings of this exceptional property are available by arrangement only. Call Bevan Saywell on 027 667 0944 or Courtenay Steel on 021 055 9219 today to view.
To view and download the property files, please use this link: propertyfiles.co.nz/property/M28630
Tender closes 11 December, 2025 at 2:00pm at Tremains, Masterton (unless sold prior)
Open home times
Property Files

Discover more about this property.
Request the files from Bevan.
Agent's details
















































