


Listing Description
No Ugly Duckling
1/249 Richardson Road, Mount Roskill, Auckland City, Auckland
Details
| Attribute | Value |
|---|---|
| Property type | House |
| Parking | 2 garage spaces, 1 open spaces |
| Agency reference | MLB61368 |
| Broadband in the area |
Description
Looking for your next DIY project? Not afraid of hard work? Ready to transform this much loved family home into the best house in the street?
Then this is a must view.
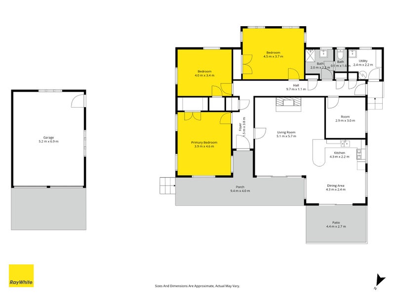
First time on the market for over 30 years, the moment you step inside you will see the potential this cherished classic 1930s family home offers - high ceilings, spacious open plan kitchen and dining, separate lounge complete with an open fire place, all bathed in round-the-clock natural daylight, with a seamless flow to the large northerly terrace, ideal for entertaining guests or relaxing evenings with family.
There are also three generous sized bedrooms, each with original character features, plus a family bathroom and separate laundry and a versatile space that could be a potential second bathroom or additional bedroom (subject to approval).
The freestanding double garage offers plenty of space for vehicles and storage, plus additional off-street parking.
Situated in a prime spot, the location highlights include:
- Street frontage with urban views towards the city skyline
- Walking distance to the Stoddard Road shops
- Close to May Road Shopping Centre
- Easy access to SH20 (Waterview Tunnel)
- Zoned for New Windsor School, Blockhouse Bay Intermediate and Avondale College
Motivated vendors instructions are clear - they want this sold now!
Don't miss your opportunity to unlock the home's full potential and transform this ugly duckling into a rising phoenix.
What are you waiting for?
NOTE: The technical info provided (incl. the floor & section sizes) has been sourced from organisations such as RPNZ, Property Guru & Auckland Council; these are broad guides for general information only. They are solely intended to provide a general understanding of the subject matter & to help you assess whether you need more detailed information. We recommend you seek your own independent advice on everything material to your purchasing decision.
Open home times
Property Files

Discover more about this property.
Request the files from Stephen.
Local Schools
While we've done our best to correctly list schools in this location, school zone information may not be exact, so please double check with the school.
Agent's details

















