


Listing Description
Owners relocated to Chch - present all offers
201/64 Victoria Street, Onehunga, Auckland City, Auckland
Enquiries over $800,000
Details
| Attribute | Value |
|---|---|
| Property type | House |
| Parking | Single Garage + Off Street Parking |
| Property ID# | JNX245 |
| Agency reference | EDN35023 |
Description
The owners have relocated to Christchurch and are clear in their intentions - this apartment will be sold. They are realistic on price and will consider all offers.
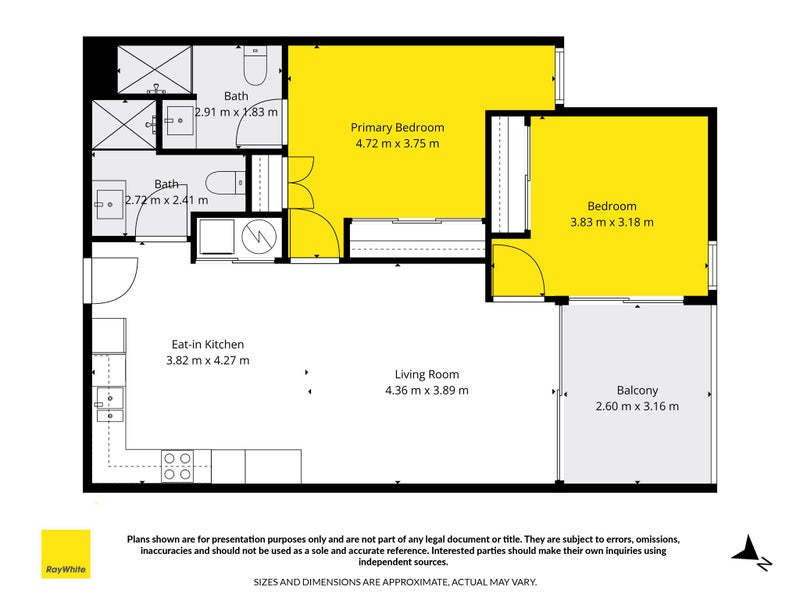
This stylish two-bedroom, two-bathroom apartment in the highly regarded Fabric Apartments stands out for the right reasons. Positioned on the second floor, it enjoys open views toward Victoria Street, giving a sense of privacy and space rather than looking back into the complex.
The apartment features a black designer kitchen that adds contrast and edge, flowing into a well-proportioned open-plan living area and out to a private balcony. Both bedrooms are genuine doubles with built-in wardrobes, complemented by two modern bathrooms, including a master ensuite.
Comfort and efficiency are well covered with serious double glazing, a heat pump, and HRV system, making this a warm, quiet, and low-maintenance home. A covered car park and storage locker complete the package.
Fabric is known for its quality build and strong community feel, with landscaped shared spaces, BBQ area, and gardens - all just moments from Onehunga Mall, transport, cafés, and parks.
This is a smart apartment in an exceptional complex, and with highly motivated sellers, this is one you should act on quickly. Viewing is strongly recommended.
Further property information at lisawesterby.co.nz
Agent conjunctionals welcome.
Open home times
- to
Property Files

Discover more about this property.
Request the files from Lisa.
Agent's details












